<?xml version="1.0" encoding="utf-8"?><rss version="2.0" xmlns:atom="http://www.w3.org/2005/Atom">
	<channel>
		<atom:link href="https://www.studiotecnicoiossa.it/blog/x5feed.php" rel="self" type="application/rss+xml" />
		<title><![CDATA[]]></title>
		<link>https://www.studiotecnicoiossa.it/blog/</link>
		<description><![CDATA[]]></description>
		<language>IT</language>
		<lastBuildDate>Mon, 05 Jan 2026 13:13:00 +0100</lastBuildDate>
		<generator>Incomedia WebSite X5 Evo</generator>
		<item>
			<title><![CDATA[Vuoi realizzare un soppalco abitabile? Ecco cosa devi sapere prima di iniziare (b.9)]]></title>
			<author><![CDATA[Geom. Angelo Iossa]]></author>
			<category domain="https://www.studiotecnicoiossa.it/blog/index.php?category=edilizia"><![CDATA[edilizia]]></category>
			<category>imblog</category>
			<description><![CDATA[<div id="imBlogPost_000000018"><div><div><span class="fs12lh1-5 ff1">Il <strong data-start="379" data-end="401">soppalco abitabile</strong> è una soluzione molto richiesta per aumentare la superficie utile di un’abitazione sfruttando l’altezza interna dei locali.<br data-start="525" data-end="528"> Tuttavia, non tutti i soppalchi possono essere considerati <strong data-start="587" data-end="600">abitabili</strong>: la normativa edilizia e igienico-sanitaria prevede requisiti precisi che devono essere verificati caso per caso.</span></div> <div><span class="fs12lh1-5 ff1">Vediamo quando è possibile realizzarlo e quali sono gli aspetti tecnici da valutare.</span></div><div><img class="image-0" src="https://www.studiotecnicoiossa.it/images/2020.06.02-IMG_soppalco.jpg"  title="" alt=""/><span class="fs12lh1-5 ff1"><br></span></div><div><span class="fs12lh1-5 ff1"><br></span></div> <hr data-start="802" data-end="805"> <div><span class="fs12lh1-5 ff1">📐 Cos’è un soppalco abitabile</span></div> <div><span class="fs12lh1-5 ff1">Un soppalco è una struttura interna che crea un <strong data-start="890" data-end="912">livello aggiuntivo</strong> all’interno di un ambiente.<br data-start="940" data-end="943"> Si parla di <strong data-start="955" data-end="977">soppalco abitabile</strong> quando lo spazio realizzato è destinato a <strong data-start="1020" data-end="1040">uso residenziale</strong> (camera, studio, soggiorno, ecc.) e rispetta tutti i requisiti previsti dalla normativa vigente.</span></div> <div><span class="fs12lh1-5 ff1">Diversamente, un soppalco <strong data-start="1165" data-end="1182">non abitabile</strong> può essere destinato solo a deposito, ripostiglio o zona accessoria.</span></div> <hr data-start="1253" data-end="1256"> <div><span class="fs12lh1-5 ff1">📏 Requisiti principali per la realizzazione</span></div> <div><span class="fs12lh1-5 ff1">I requisiti possono variare in base a <strong data-start="1345" data-end="1378">Regolamento Edilizio Comunale</strong>, <strong data-start="1380" data-end="1387">PUC</strong> e norme locali, ma in linea generale occorre verificare:</span></div> <div><span class="fs12lh1-5 ff1">🔹 Altezza interna</span></div> <ul data-start="1469" data-end="1730"> <li data-start="1469" data-end="1515"> <div><span class="fs12lh1-5 ff1">Altezza <strong data-start="1479" data-end="1515">minima sotto e sopra il soppalco</strong></span></div> </li> <li data-start="1516" data-end="1607"> <div><span class="fs12lh1-5 ff1">Altezza <strong data-start="1526" data-end="1545">media ponderale</strong> dei due livelli<br data-start="1561" data-end="1564"> Spesso sono richiesti valori indicativi di:</span></div> </li> <li data-start="1608" data-end="1650"> <div><span class="fs12lh1-5 ff1">almeno <strong data-start="1617" data-end="1627">2,70 m</strong> per i locali abitabili</span></div> </li> <li data-start="1651" data-end="1730"> <div><span class="fs12lh1-5 ff1">riduzioni ammesse (es. <strong data-start="1676" data-end="1686">2,40 m</strong>) in casi specifici o per corridoi e servizi</span></div> </li> </ul> <div><span class="fs12lh1-5 ff1">👉 Ogni Comune può prevedere <strong data-start="1761" data-end="1792">deroghe o parametri diversi</strong>, quindi la verifica preventiva è fondamentale.</span></div> <hr data-start="1841" data-end="1844"> <div><span class="fs12lh1-5 ff1">🔹 Rapporto aero-illuminante (RAI)</span></div> <div><span class="fs12lh1-5 ff1">Il soppalco deve garantire:</span></div> <ul data-start="1913" data-end="1978"> <li data-start="1913" data-end="1950"> <div><span class="fs12lh1-5 ff1">adeguata <strong data-start="1924" data-end="1950">illuminazione naturale</strong></span></div> </li> <li data-start="1951" data-end="1978"> <div><span class="fs12lh1-5 ff1">sufficiente <strong data-start="1965" data-end="1978">aerazione</strong></span></div> </li> </ul> <div><span class="fs12lh1-5 ff1">Le superfici finestrate devono essere proporzionate alla nuova superficie utile creata.</span></div> <hr data-start="2069" data-end="2072"> <div><span class="fs12lh1-5 ff1">🔹 Superficie del soppalco</span></div> <div><span class="fs12lh1-5 ff1">Molti regolamenti stabiliscono che:</span></div> <ul data-start="2141" data-end="2271"> <li data-start="2141" data-end="2212"> <div><span class="fs12lh1-5 ff1">il soppalco <strong data-start="2155" data-end="2189">non occupi l’intera superficie</strong> del locale sottostante</span></div> </li> <li data-start="2213" data-end="2271"> <div><span class="fs12lh1-5 ff1">sia mantenita una percezione di spazio e volume adeguata</span></div> </li> </ul> <hr data-start="2273" data-end="2276"> <div><span class="fs12lh1-5 ff1">🔹 Struttura e sicurezza</span></div> <div><span class="fs12lh1-5 ff1">La struttura deve essere:</span></div> <ul data-start="2333" data-end="2490"> <li data-start="2333" data-end="2362"> <div><strong data-start="2335" data-end="2362" class="fs12lh1-5 ff1">staticamente verificata</strong></div> </li> <li data-start="2363" data-end="2416"> <div><span class="fs12lh1-5 ff1">conforme alle <strong data-start="2379" data-end="2416">Norme Tecniche per le Costruzioni</strong></span></div> </li> <li data-start="2417" data-end="2490"> <div><span class="fs12lh1-5 ff1">dotata di <strong data-start="2429" data-end="2442">parapetti</strong>, scale a norma e adeguate protezioni anticaduta</span></div> </li> </ul> <hr data-start="2492" data-end="2495"> <div><span class="fs12lh1-5 ff1">🏗️ Titolo edilizio necessario</span></div> <div><span class="fs12lh1-5 ff1">Nella maggior parte dei casi, un soppalco abitabile comporta:</span></div> <ul data-start="2594" data-end="2713"> <li data-start="2594" data-end="2627"> <div><strong data-start="2596" data-end="2627" class="fs12lh1-5 ff1">aumento di superficie utile</strong></div> </li> <li data-start="2628" data-end="2663"> <div><strong data-start="2630" data-end="2663" class="fs12lh1-5 ff1">modifica distributiva interna</strong></div> </li> <li data-start="2664" data-end="2713"> <div><span class="fs12lh1-5 ff1">possibile <strong data-start="2676" data-end="2713">incremento del carico urbanistico</strong></span></div> </li> </ul> <div><span class="fs12lh1-5 ff1">👉 È quindi generalmente necessario un <strong data-start="2754" data-end="2773">titolo edilizio</strong> (SCIA o Permesso di Costruire, a seconda dei casi), oltre al deposito strutturale se richiesto.</span></div> <hr data-start="2871" data-end="2874"> <div><span class="fs12lh1-5 ff1">⚠️ Attenzione: non tutti i soppalchi sono sanabili</span></div> <div><span class="fs12lh1-5 ff1">Realizzare un soppalco senza titolo abilitativo può comportare:</span></div> <ul data-start="2995" data-end="3103"> <li data-start="2995" data-end="3020"> <div><span class="fs12lh1-5 ff1">sanzioni amministrative</span></div> </li> <li data-start="3021" data-end="3061"> <div><span class="fs12lh1-5 ff1">difficoltà nella vendita dell’immobile</span></div> </li> <li data-start="3062" data-end="3103"> <div><span class="fs12lh1-5 ff1">problemi in fase di mutuo o successione</span></div> </li> </ul> <div><span class="fs12lh1-5 ff1">Ogni intervento deve essere <strong data-start="3133" data-end="3182">progettato e verificato prima dell’esecuzione</strong>.</span></div> <hr data-start="3185" data-end="3188"> <div><span class="fs12lh1-5 ff1">👷‍♂️ Perché affidarsi a un tecnico</span></div> <div><span class="fs12lh1-5 ff1">Un tecnico abilitato verifica:</span></div> <ul data-start="3261" data-end="3436"> <li data-start="3261" data-end="3297"> <div><span class="fs12lh1-5 ff1">conformità urbanistica e catastale</span></div> </li> <li data-start="3298" data-end="3340"> <div><span class="fs12lh1-5 ff1">rispetto delle altezze e delle superfici</span></div> </li> <li data-start="3341" data-end="3382"> <div><span class="fs12lh1-5 ff1">normativa comunale e igienico-sanitaria</span></div> </li> <li data-start="3383" data-end="3408"> <div><span class="fs12lh1-5 ff1">fattibilità strutturale</span></div> </li> <li data-start="3409" data-end="3436"> <div><span class="fs12lh1-5 ff1">corretta pratica edilizia</span></div> </li> </ul> <div><span class="fs12lh1-5 ff1">Solo dopo queste verifiche è possibile capire se il soppalco può essere <strong data-start="3510" data-end="3554">abitabile, accessorio o non realizzabile</strong>.</span></div> <hr data-start="3557" data-end="3560"><img class="image-1" src="https://www.studiotecnicoiossa.it/images/soppalco-rintal-1024x768.jpg"  title="" alt=""/> <div><span class="fs12lh1-5 ff1"><br></span></div><div><span class="fs12lh1-5 ff1"><br></span></div><div><span class="fs12lh1-5 ff1"><br></span></div><div><span class="fs12lh1-5 ff1">📍 Conclusione</span></div> <div><span class="fs12lh1-5 ff1">Il soppalco abitabile è una grande opportunità per valorizzare un immobile, ma richiede <strong data-start="3669" data-end="3715">un’attenta valutazione tecnica e normativa</strong>.<br data-start="3716" data-end="3719"> Ogni caso è diverso e va studiato in base alle caratteristiche dell’edificio e alle norme locali.</span></div> <div><span class="fs12lh1-5 ff1">📞 </span><strong data-start="3821" data-end="3915"><span class="fs12lh1-5 ff1">Prima di realizzare un soppalco, è sempre consigliabile una consulenza tecnica preventiv</span>a.</strong></div></div></div>]]></description>
			<pubDate>Mon, 05 Jan 2026 12:13:00 GMT</pubDate>
			<enclosure url="https://www.studiotecnicoiossa.it/blog/files/2020.06.02-IMG_soppalco_thumb.jpg" length="44553" type="image/jpg" />
			<link>https://www.studiotecnicoiossa.it/blog/?9--soppalco-abitabile--quando-e-possibile-e-quali-requisiti-servono</link>
			<guid isPermaLink="false">https://www.studiotecnicoiossa.it/blog/rss/000000018</guid>
		</item>
		<item>
			<title><![CDATA[8. Prima casa, imposte, agevolazioni]]></title>
			<author><![CDATA[geom. Angelo Iossa]]></author>
			<category domain="https://www.studiotecnicoiossa.it/blog/index.php?category=notarile"><![CDATA[notarile]]></category>
			<category>imblog</category>
			<description><![CDATA[<div id="imBlogPost_000000016"><div><span class="fs10lh1-5 cf1 ff1"><strong data-start="212" data-end="280">Agevolazione acquisto prima casa: guida 2025 (chiara e completa)</strong><br data-start="280" data-end="283"> <em data-start="283" data-end="311">Ultimo aggiornamento: 2025</em></span></div> <div><span class="fs10lh1-5 cf1 ff1">L’agevolazione “prima casa” è uno dei benefici fiscali più importanti per chi acquista un’abitazione da destinare a propria residenza.<br data-start="447" data-end="450"> Permette di <strong data-start="462" data-end="506">ridurre in modo significativo le imposte</strong>, sia nel caso di acquisto da privato sia nel caso di acquisto da impresa.</span></div> <div><span class="fs10lh1-5 cf1 ff1">In questa guida aggiornata al 2025 trovi spiegato in modo semplice:</span></div> <div><span class="fs10lh1-5 cf1 ff1">• quali sono i requisiti<br data-start="675" data-end="678"> • quali imposte si pagano<br data-start="703" data-end="706"> • come si calcola il valore catastale<br data-start="743" data-end="746"> • come funzionano le pertinenze<br data-start="777" data-end="780"> • quando si perde o si mantiene il beneficio<br data-start="824" data-end="827"> • cosa succede se si vende prima dei 5 anni</span></div> <hr data-start="874" data-end="877"> <div><strong data-start="882" data-end="922" class="fs10lh1-5 cf1 ff1"><img class="image-1" src="https://www.studiotecnicoiossa.it/images/tasse-per-acquisto-casa-4.jpg"  title="" alt=""/><br></strong></div><div><strong data-start="882" data-end="922" class="fs10lh1-5 cf1 ff1"><br></strong></div><div><strong data-start="882" data-end="922" class="fs10lh1-5 cf1 ff1">1. Cos’è l’agevolazione “prima casa”</strong></div> <div><span class="fs10lh1-5 cf1 ff1">È un’agevolazione fiscale che riduce le imposte sull’acquisto di un’abitazione destinata a diventare la <strong data-start="1028" data-end="1052">residenza principale</strong> dell’acquirente.</span></div> <div><span class="fs10lh1-5 cf1 ff1">L’agevolazione riguarda sia l’immobile principale (categorie catastali A/2, A/3, A/4, A/5, A/6, A/7) sia <strong data-start="1176" data-end="1199">una sola pertinenza</strong> tra:</span></div> <div><span class="fs10lh1-5 cf1 ff1">• C/2 – cantina, soffitta, deposito<br data-start="1241" data-end="1244"> • C/6 – box e posti auto<br data-start="1268" data-end="1271"> • C/7 – tettoia</span></div> <hr data-start="1290" data-end="1293"> <div><strong data-start="1298" data-end="1353" class="fs10lh1-5 cf1 ff1">2. Requisiti per ottenere l’agevolazione prima casa</strong></div> <div><span class="fs10lh1-5 cf1 ff1">Per usufruire dell’agevolazione, nell’atto notarile occorre dichiarare che:</span></div> <div><span class="fs10lh1-5 cf1 ff1">• non si possiede un’altra casa acquistata con agevolazioni prima casa in Italia<br data-start="1512" data-end="1515"> • non si possiede un’altra abitazione nel <strong data-start="1557" data-end="1576">medesimo Comune</strong><br data-start="1576" data-end="1579"> • si trasferirà la <strong data-start="1598" data-end="1636">residenza nel Comune entro 18 mesi</strong> dall’acquisto (o si ha già)<br data-start="1664" data-end="1667"> • si rispettano tutte le condizioni richieste dalla legge</span></div> <hr data-start="1728" data-end="1731"> <div><strong data-start="1736" data-end="1776" class="fs10lh1-5 cf1 ff1">3. Imposte se si acquista da privato</strong></div> <div><span class="fs10lh1-5 cf1 ff1">Se si acquista da un <strong data-start="1799" data-end="1810">privato</strong> (o da un’impresa in esenzione IVA) le imposte si calcolano sul <strong data-start="1874" data-end="1894">valore catastale</strong>, non sul prezzo.</span></div> <div><span class="fs10lh1-5 cf1 ff1">Con l’agevolazione si pagano:</span></div> <div><span class="fs10lh1-5 cf1 ff1">• <strong data-start="1946" data-end="1972">2% imposta di registro</strong><br data-start="1972" data-end="1975"> • <strong data-start="1977" data-end="2004">50 € imposta ipotecaria</strong><br data-start="2004" data-end="2007"> • <strong data-start="2009" data-end="2035">50 € imposta catastale</strong></span></div> <div><span class="fs10lh1-5 cf1 ff1">L’imposta di registro ha un minimo di <strong data-start="2075" data-end="2086">1.000 €</strong>.</span></div> <hr data-start="2089" data-end="2092"> <div><strong data-start="2097" data-end="2152" class="fs10lh1-5 cf1 ff1">4. Imposte se si acquista da impresa soggetta a IVA</strong></div> <div><span class="fs10lh1-5 cf1 ff1">Se si acquista da una <strong data-start="2176" data-end="2198">ditta costruttrice</strong> con vendita soggetta a IVA:</span></div> <div><span class="fs10lh1-5 cf1 ff1">• <strong data-start="2230" data-end="2240">4% IVA</strong> sul prezzo<br data-start="2251" data-end="2254"> • <strong data-start="2256" data-end="2285">200 € imposta di registro</strong><br data-start="2285" data-end="2288"> • <strong data-start="2290" data-end="2318">200 € imposta ipotecaria</strong><br data-start="2318" data-end="2321"> • <strong data-start="2323" data-end="2350">200 € imposta catastale</strong></span></div> <div><span class="fs10lh1-5 cf1 ff1">In questo caso la base imponibile è il <strong data-start="2391" data-end="2418">prezzo di compravendita</strong>, non il valore catastale.</span></div> <hr data-start="2446" data-end="2449"> <div><strong data-start="2454" data-end="2496" class="fs10lh1-5 cf1 ff1">5. Come si calcola il valore catastale</strong></div> <div><span class="fs10lh1-5 cf1 ff1">Per gli acquisti tra privati si usa questa formula:</span></div> <div><strong data-start="2551" data-end="2606" class="fs10lh1-5 cf1 ff1">Valore catastale = Rendita catastale × 1,05 × 115,5</strong></div> <div><span class="fs10lh1-5 cf1 ff1">Esempio:<br data-start="2616" data-end="2619"> rendita catastale 600,00 €<br data-start="2645" data-end="2648"> → valore catastale = 600 × 1,05 × 115,5 = <strong data-start="2690" data-end="2702">€ 72.765</strong><br data-start="2702" data-end="2705"> → imposta registro 2% = <strong data-start="2729" data-end="2743">€ 1.455,30</strong></span></div> <hr data-start="2745" data-end="2748"> <div><strong data-start="2753" data-end="2782" class="fs10lh1-5 cf1 ff1">6. Pertinenze agevolabili</strong></div> <div><span class="fs10lh1-5 cf1 ff1">È possibile agevolare <strong data-start="2806" data-end="2829">una sola pertinenza</strong> per ognuna delle categorie:</span></div> <div><span class="fs10lh1-5 cf1 ff1">• C/2<br data-start="2864" data-end="2867"> • C/6<br data-start="2872" data-end="2875"> • C/7</span></div> <div><span class="fs10lh1-5 cf1 ff1">La pertinenza segue esattamente la stessa tassazione dell'abitazione principale.</span></div> <hr data-start="2966" data-end="2969"> <div><strong data-start="2974" data-end="3011" class="fs10lh1-5 cf1 ff1">7. Quando si perde l’agevolazione</strong></div> <div><span class="fs10lh1-5 cf1 ff1">Si perde il beneficio se:</span></div> <div><span class="fs10lh1-5 cf1 ff1">• non si trasferisce la residenza nel Comune entro 18 mesi<br data-start="3098" data-end="3101"> • si vende la casa <strong data-start="3120" data-end="3140">prima dei 5 anni</strong> senza riacquistarne un’altra entro 12 mesi<br data-start="3183" data-end="3186"> • si rendono dichiarazioni false nell’atto</span></div> <div><span class="fs10lh1-5 cf1 ff1">La decadenza comporta il pagamento della differenza d’imposta, <strong data-start="3295" data-end="3315">sanzione del 30%</strong> e interessi.</span></div> <hr data-start="3330" data-end="3333"> <div><strong data-start="3338" data-end="3369" class="fs10lh1-5 cf1 ff1">8. Vendita prima dei 5 anni</strong></div> <div><span class="fs10lh1-5 cf1 ff1">Non si perde l’agevolazione se:</span></div> <div><span class="fs10lh1-5 cf1 ff1">• entro 12 mesi si acquista un altro immobile da destinare a prima casa<br data-start="3475" data-end="3478"> • si dichiara l’intenzione di utilizzarlo come abitazione principale</span></div> <div><span class="fs10lh1-5 cf1 ff1">In questo caso si ottiene anche un <strong data-start="3585" data-end="3606">credito d’imposta</strong> pari a quanto pagato sul precedente acquisto.</span></div> <hr data-start="3654" data-end="3657"> <div><strong data-start="3662" data-end="3691" class="fs10lh1-5 cf1 ff1">9. Conclusioni e contatti</strong></div> <div><span class="fs10lh1-5 cf1 ff1">L’agevolazione prima casa è un’opportunità di risparmio importante, ma richiede attenzione ai requisiti e alle tempistiche.<br data-start="3816" data-end="3819"> Ogni situazione (vendita, riacquisto, pertinenze, quote di proprietà, ecc.) va valutata con cura.</span></div> <div><span class="fs10lh1-5 cf1 ff1">Per chiarimenti, calcoli personalizzati delle imposte, simulazioni o assistenza completa sulla tua pratica:</span></div> <div><span class="fs10lh1-5 cf1 ff1"><br></span></div><div><span class="fs10lh1-5 cf1 ff1">📞 <strong data-start="4030" data-end="4100">Puoi contattarmi per fissare un appuntamento presso il nostro studio per assistenza a rogiti notarili e consulenze varie.</strong><br></span></div></div>]]></description>
			<pubDate>Tue, 18 Nov 2025 16:24:00 GMT</pubDate>
			<enclosure url="https://www.studiotecnicoiossa.it/blog/files/prima-casa2_thumb.jpg" length="76500" type="image/jpg" />
			<link>https://www.studiotecnicoiossa.it/blog/?agevolazione-prima-casa-2025</link>
			<guid isPermaLink="false">https://www.studiotecnicoiossa.it/blog/rss/000000016</guid>
		</item>
		<item>
			<title><![CDATA[salva casa - tolleranze (verande e ripostigli balconi)]]></title>
			<author><![CDATA[Geom. Angelo Iossa]]></author>
			<category domain="https://www.studiotecnicoiossa.it/blog/index.php?category=edilizia"><![CDATA[edilizia]]></category>
			<category>imblog</category>
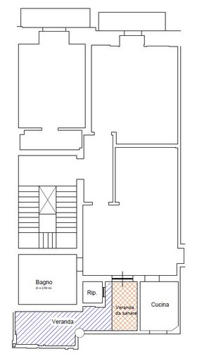
			<description><![CDATA[<div id="imBlogPost_000000015"><div><strong data-start="359" data-end="426" class="fs12lh1-5 cf1 ff1">Salva Casa: esempi concreti per regolarizzare la tua abitazione</strong></div> <hr data-start="428" data-end="431"> <div><span class="fs12lh1-5 cf1 ff1">Introduzione</span></div> <div><span class="fs12lh1-5 cf1 ff1">Il <strong data-start="455" data-end="477">Decreto Salva Casa</strong> (D.L. 69/2024) permette ai proprietari di regolarizzare <strong data-start="534" data-end="565">piccole difformità edilizie</strong> senza dover affrontare demolizioni costose o ricorsi infiniti.</span></div> <div><span class="fs12lh1-5 cf1 ff1">Molti si chiedono: <em data-start="651" data-end="678">“Ma il mio caso rientra?”</em><br data-start="678" data-end="681"> Ecco alcuni esempi pratici per capire meglio.</span></div> <hr data-start="730" data-end="733"> <div><span class="fs12lh1-5 cf1 ff1">🔹 Tolleranze ammesse dal Salva Casa</span></div> <div><span class="fs12lh1-5 cf1 ff1">La legge stabilisce delle <strong data-start="804" data-end="830">tolleranze costruttive</strong>, cioè margini entro cui sono ammesse differenze tra progetto e realtà.</span></div> <div><span class="fs12lh1-5 cf1 ff1">In particolare, variano in base alla <strong data-start="942" data-end="980">superficie utile dell’appartamento</strong>:</span></div> <ul data-start="984" data-end="1122"> <li data-start="984" data-end="1029"> <div><span class="fs12lh1-5 cf1 ff1">Fino a <strong data-start="993" data-end="1003">100 mq</strong>: tolleranza <strong data-start="1016" data-end="1026">del 5%</strong>.</span></div> </li> <li data-start="1030" data-end="1077"> <div><span class="fs12lh1-5 cf1 ff1">Da <strong data-start="1035" data-end="1051">100 a 300 mq</strong>: tolleranza <strong data-start="1064" data-end="1074">del 4%</strong>.</span></div> </li> <li data-start="1078" data-end="1122"> <div><span class="fs12lh1-5 cf1 ff1">Oltre <strong data-start="1086" data-end="1096">300 mq</strong>: tolleranza <strong data-start="1109" data-end="1119">del 3%</strong>.</span></div></li></ul><div><div><span class="fs12lh1-5 cf1 ff1">🔹 Casi pratici</span></div> <div><span class="fs12lh1-5 ff1"><img class="image-2" src="https://www.studiotecnicoiossa.it/images/salva-casa-1726140594.jpg"  title="" alt=""/><span class="cf1"><strong data-start="1255" data-end="1284"><br></strong></span></span></div><div><br></div><div><span class="fs12lh1-5 cf1 ff1"><strong data-start="1255" data-end="1284">1. La veranda sul balcone</strong><br data-start="1284" data-end="1287"> Una chiusura in alluminio e vetro può essere regolarizzata se le dimensioni rientrano nelle tolleranze previste.</span></div> <div><span class="fs12lh1-5 cf1 ff1"><strong data-start="1403" data-end="1437">2. Il ripostiglio sul terrazzo</strong><br data-start="1437" data-end="1440"> Un piccolo volume accessorio (per attrezzi o lavatrice) può essere sanato se rispetta i limiti dimensionali.</span></div> <div><span class="fs12lh1-5 cf1 ff1"><strong data-start="1552" data-end="1584">3. Tramezzi e porte spostate</strong><br data-start="1584" data-end="1587"> Molto frequente: planimetria diversa dalla realtà. Col Salva Casa è possibile riallineare documenti e stato dei luoghi.</span></div> <div></div> <div><span class="fs12lh1-5 cf1 ff1"><br></span></div><div><span class="fs12lh1-5 cf1 ff1"><b>Conclusione</b></span></div> <div><span class="fs12lh1-5 cf1 ff1">Il <strong data-start="1862" data-end="1876">Salva Casa</strong> non risolve ogni abuso, ma è una grande opportunità per chi ha <strong data-start="1940" data-end="1973">piccole irregolarità edilizie</strong>.<br data-start="1974" data-end="1977"> 👉 Ogni situazione va analizzata caso per caso: un tecnico può valutare se rientra nelle tolleranze e guidarti alla regolarizzazione.</span></div></div><div><span class="fs12lh1-5 ff1"><br></span></div><div><span class="fs12lh1-5 ff1"><br></span></div><div><span class="fs12lh1-5 ff2"><b><span class="cf2">Lo scrivente studio si occupa anche di queste pratiche edilizie.</span></b></span></div><div><span class="fs12lh1-5 ff2"><b><span class="cf2">Invia una e-mail all'indirizzo edilizia@studiotecnicoiossa.it per fissare un appuntamento in sede.</span></b></span></div><div><span class="fs12lh1-5 ff2"><b><span class="cf2">Distinti saluti.</span></b></span></div></div>]]></description>
			<pubDate>Tue, 26 Aug 2025 19:22:00 GMT</pubDate>
			<enclosure url="https://www.studiotecnicoiossa.it/blog/files/Immagine-2024-05-24-231618_25002405_thumb.jpg" length="140509" type="image/jpg" />
			<link>https://www.studiotecnicoiossa.it/blog/?salva-casa---tolleranze-1-verande-ripostigli-su-balconi</link>
			<guid isPermaLink="false">https://www.studiotecnicoiossa.it/blog/rss/000000015</guid>
		</item>
		<item>
			<title><![CDATA[Documentazione da consegnare al cliente SCIA]]></title>
			<author><![CDATA[geom. Angelo Iossa]]></author>
			<category domain="https://www.studiotecnicoiossa.it/blog/index.php?category=informativa"><![CDATA[informativa]]></category>
			<category>imblog</category>
			<description><![CDATA[<div id="imBlogPost_000000014"><div><span class="fs14lh1-5 ff1"><span class="cf1">Con la SCIA (Segnalazione Certificata di Inizio Attività) edilizia presentata online, al cliente non viene rilasciato un documento fisico, ma viene generata</span><span class="cf1"> </span><mark><span class="cf2">una ricevuta digitale di avvenuta presentazione da parte dello Sportello Unico Digitale</span></mark><span class="cf1">.</span><span class="cf1"> </span><span class="cf1">Questa ricevuta attesta l'avvenuta presentazione della SCIA e può essere scaricata e conservata digitalmente o stampata.</span><span class="cf1"> </span><span class="cf1">Cosa riceve il cliente:</span></span></div><div><ul jscontroller="M2ABbc" jsaction="jZtoLb:SaHfyb" data-hveid="CBkQAQ" data-ved="2ahUKEwi277_P6q2OAxXY_rsIHXWVOf4Qm_YKegQIGRAB"><li><div><strong><span class="fs14lh1-5 cf1 ff1">Ricevuta di presentazione digitale:</span></strong></div><div><span class="fs14lh1-5 cf3 ff1">Generata dallo Sportello Unico Digitale, attesta l'avvenuta presentazione della SCIA e può essere scaricata e conservata digitalmente.</span></div></li><li><strong><span class="fs14lh1-5 cf1 ff1">Possibilità di verifica online:</span></strong></li></ul></div><div><span class="fs14lh1-5 cf3 ff1">Il cliente può accedere al sito dello Sportello Unico Digitale e verificare lo stato di avanzamento della pratica e, se necessario, scaricare la ricevuta.</span></div><div><ul><li><strong class="fs14lh1-5 ff1"><span class="cf1">Documentazione allegata:</span></strong></li></ul></div><div><span class="fs14lh1-5 ff1"><span class="cf3">La SCIA online comprende tutti i documenti allegati alla segnalazione, come elaborati tecnici, relazioni,, rilievo fotografico, titolo di proprietà, ecc., che vengono firmati digitalmente dal professionista e caricati telematicamente.</span><span class="cf3"> </span><span class="cf3">Questi documenti sono consultabili e scaricabili dal cliente attraverso lo Sportello Unico Digitale.</span></span></div><div><span class="fs14lh1-5 cf1 ff1"><br></span></div><div><span class="fs14lh1-5 cf1 ff1">In sintesi: La SCIA edilizia online si traduce in una ricevuta digitale e accesso alla documentazione digitale, invece di un documento fisico.</span></div></div>]]></description>
			<pubDate>Tue, 08 Jul 2025 17:56:00 GMT</pubDate>
			<enclosure url="https://www.studiotecnicoiossa.it/blog/files/images_thumb_neegsyoj.jpg" length="6717" type="image/jpg" />
			<link>https://www.studiotecnicoiossa.it/blog/?documentazione-per-cliente-scia</link>
			<guid isPermaLink="false">https://www.studiotecnicoiossa.it/blog/rss/000000014</guid>
		</item>
		<item>
			<title><![CDATA[Salva Casa - tolleranze]]></title>
			<author><![CDATA[geom. Angelo Iossa]]></author>
			<category domain="https://www.studiotecnicoiossa.it/blog/index.php?category=edilizia"><![CDATA[edilizia]]></category>
			<category>imblog</category>
			<description><![CDATA[<div id="imBlogPost_000000013"><div><span class="fs12lh1-5 cf1 ff1">La Legge n. 105/2024 “Salva Casa” ha introdotto uno speciale regime di tolleranze costruttive riservato alle opere ultimate entro il 24 maggio 2024 (comma 1-bis art. 34-bis T.U.E), ampliando il perimetro di quanto già previsto nelle tolleranze costruttive (comma 1), con percentuali maggiorate e più generose nei confronti dei medesimi parametri (altezza, distacchi, cubatura, superficie coperta e ogni altro parametro) verso le singole unità immobiliari. Per esse occorre dimostrare con certezza la loro avvenuta ultimazione entro tale termine, in funzione del titolo abilitativo a cui afferiscono. Il regime di maggior favore si riassume come segue, premettendo che non si dovrà applicare il metodo selettivo per scaglioni, bensì semplicemente proporzionale. </span></div><div><span class="fs12lh1-5 cf1 ff1">Per esempio, se la superficie utile è pari a 130 mq, si dovrà selezionare direttamente il 4%.</span></div><div><span class="fs12lh1-5 cf1 ff1"><br></span></div><div><div><img class="image-0" src="https://www.studiotecnicoiossa.it/images/tolleranze.png"  title="" alt=""/><br></div></div></div>]]></description>
			<pubDate>Sat, 17 May 2025 11:15:00 GMT</pubDate>
			<enclosure url="https://www.studiotecnicoiossa.it/blog/files/tolleranze-costruttive-4fe_thumb.jpg" length="173091" type="image/jpg" />
			<link>https://www.studiotecnicoiossa.it/blog/?salva-casa---tolleranze</link>
			<guid isPermaLink="false">https://www.studiotecnicoiossa.it/blog/rss/000000013</guid>
		</item>
		<item>
			<title><![CDATA[Reg.Campania CIRCOLARE APPLICATIVA N. CI/2025/3 DEL 28/01/2025]]></title>
			<author><![CDATA[Geom. Angelo Iossa]]></author>
			<category domain="https://www.studiotecnicoiossa.it/blog/index.php?category=edilizia"><![CDATA[edilizia]]></category>
			<category>imblog</category>
			<description><![CDATA[<div id="imBlogPost_000000011"><div><span class="fs14lh1-5">Clicca sul seguente link per aprire il testo:</span></div><div><span class="fs14lh1-5"><a href="https://www.studiotecnicoiossa.it/files/CIRCOLARE-N.-CI.2025.3_28.01.2025.pdf" onclick="return x5engine.imShowBox({ media:[{type: 'iframe', url: 'https://www.studiotecnicoiossa.it/files/CIRCOLARE-N.-CI.2025.3_28.01.2025.pdf', width: 1920, height: 1080, description: ''}]}, 0, this);" class="imCssLink">- circolare regionale del 28.01.2025</a></span></div></div>]]></description>
			<pubDate>Tue, 28 Jan 2025 19:25:00 GMT</pubDate>
			<enclosure url="https://www.studiotecnicoiossa.it/blog/files/Cattura_thumb_bphzrd1t.jpg" length="27986" type="image/jpg" />
			<link>https://www.studiotecnicoiossa.it/blog/?reg-campania-circolare-applicativa-n--ci-2025-3-del-28-01-2025</link>
			<guid isPermaLink="false">https://www.studiotecnicoiossa.it/blog/rss/000000011</guid>
		</item>
		<item>
			<title><![CDATA[Regionale Campania Legge Urbanistica n.05/2024]]></title>
			<author><![CDATA[Geom. Angelo Iossa]]></author>
			<category domain="https://www.studiotecnicoiossa.it/blog/index.php?category=edilizia"><![CDATA[edilizia]]></category>
			<category>imblog</category>
			<description><![CDATA[<div id="imBlogPost_000000010"><div><span class="cf1">Clicca sul link:</span></div><div>- <span class="fs14lh1-5"><a href="https://www.studiotecnicoiossa.it/files/L_R_5_DEL_29_4_2024.pdf" onclick="return x5engine.imShowBox({ media:[{type: 'iframe', url: 'https://www.studiotecnicoiossa.it/files/L_R_5_DEL_29_4_2024.pdf', width: 1920, height: 1080, description: ''}]}, 0, this);" class="imCssLink">Legge Regionale Urbanistica - STUDIO TECNIO IOSSA</a></span><br></div><div>- <span class="fs14lh1-5"><a href="https://www.studiotecnicoiossa.it/files/L_URBAN_Camp_16_2004_t._coordinato_L_R_5_2024.pdf" onclick="return x5engine.imShowBox({ media:[{type: 'iframe', url: 'https://www.studiotecnicoiossa.it/files/L_URBAN_Camp_16_2004_t._coordinato_L_R_5_2024.pdf', width: 1920, height: 1080, description: ''}]}, 0, this);" class="imCssLink">Legge Regionale Urbanistica testo coordinato bY ACCA - STUDIO TECNICO IOSSA</a></span><br></div></div>]]></description>
			<pubDate>Tue, 28 Jan 2025 19:14:00 GMT</pubDate>
			<enclosure url="https://www.studiotecnicoiossa.it/blog/files/Legge-urbanistica-5.2024_thumb.jpg" length="46734" type="image/jpg" />
			<link>https://www.studiotecnicoiossa.it/blog/?regionale-campania-legge-urbanistica-n-05-2024</link>
			<guid isPermaLink="false">https://www.studiotecnicoiossa.it/blog/rss/000000010</guid>
		</item>
		<item>
			<title><![CDATA[SCIA a Sanatoria]]></title>
			<author><![CDATA[Geom. Angelo Iossa]]></author>
			<category domain="https://www.studiotecnicoiossa.it/blog/index.php?category=sanatoria_edilizia"><![CDATA[sanatoria edilizia]]></category>
			<category>imblog</category>
			<description><![CDATA[<div id="imBlogPost_00000000F"><div><span class="fs11lh1-5 cf1 ff1">Regolarizzazione abusi edilizi tramite SCIA in sanatoria</span></div><div><img class="image-1" src="https://www.studiotecnicoiossa.it/images/SCIAimages.jpeg"  title="" alt=""/><span class="fs11lh1-5 cf1 ff1"><br></span></div><div><span class="fs11lh1-5 cf1 ff1">Cos'è la SCIA in sanatoria?</span></div><div><span class="fs11lh1-5 cf1 ff1">• La SCIA in sanatoria è una dichiarazione da sottoporre al comune dove è ubicato l’immobile nel caso in cui siano stati eseguiti e interventi edilizi e di ristrutturazione che coinvolgono elementi strutturali e non dell’edificio o dell'appartamento, senza aver presentato la SCIA edilizia prescritta dalla normativa vigente.</span></div><div><span class="fs11lh1-5 cf1 ff1"></span><span class="fs11lh1-5 cf1 ff1">Modifiche introdotte dal decreto salva casa</span></div><div><span class="fs11lh1-5 cf1 ff1">• La SCIA in sanatoria ha subito significativi cambiamenti con l’introduzione del decreto salva casa (D.L. 69/2024, convertito in legge 105/2024), il quale ha ampliato le possibilità di regolarizzazione delle difformità edilizie, semplificando le procedure e modificando i requisiti di conformità.</span></div><div><span class="fs11lh1-5 cf1 ff1">Descrizione della SCIA in sanatoria</span></div><div><span class="fs11lh1-5 cf1 ff1">• La SCIA in sanatoria regolarizza un intervento strutturale di tramezzature e simili realizzato senza aver prima presentato la SCIA edilizia.</span></div><div><span class="fs11lh1-5 cf1 ff1">• La SCIA in sanatoria è una dichiarazione da sottoporre al comune dove è ubicato l’immobile nel caso in cui siano stati eseguiti interventi edilizi e di ristrutturazione che coinvolgono elementi strutturali dell’edificio, senza aver presentato la SCIA edilizia prescritta dalla normativa vigente.</span></div><div><span class="fs11lh1-5 cf1 ff1">Modifiche introdotte dal decreto salva casa</span></div><div><span class="fs11lh1-5 cf1 ff1">• La SCIA in sanatoria ha subito significativi cambiamenti con l’introduzione del decreto salva casa (D.L. 69/2024, convertito in legge 105/2024), il quale ha ampliato le possibilità di regolarizzazione delle difformità edilizie, semplificando le procedure e modificando i requisiti di conformità. </span></div><div><span class="fs11lh1-5 cf1 ff1">Spiegazione della SCIA in sanatoria</span></div><div><span class="fs11lh1-5 cf1 ff1">• SCIA in sanatoria: cos’è</span></div><div><span class="fs11lh1-5 cf1 ff1">• La SCIA in sanatoria, o meglio SCIA e accertamento di conformità come definita dall’art. 37 del D.P.R. 380/2001, rappresenta un tipo di autorizzazione che permette la regolarizzazione di abusi edilizi, cioè di lavori effettuati senza la presentazione della SCIA edilizia o in violazione delle relative disposizioni.</span></div><div><span class="fs11lh1-5 cf1 ff1">• Questa procedura offre, quindi, la possibilità di regolarizzare la propria situazione edilizia, evitando le sanzioni previste per l’abusivismo edilizio.</span></div><div><span class="fs11lh1-5 cf1 ff1">Tipologie di SCIA in Sanatoria</span></div><div><span class="fs11lh1-5 cf1 ff1">• Esistono 2 tipologie di SCIA in sanatoria:</span></div><div><span class="fs11lh1-5 cf1 ff1">• SCIA tardiva: applicata quando i lavori sono ancora in fase di esecuzione;</span></div><div><span class="fs11lh1-5 cf1 ff1">• SCIA in sanatoria per regolarizzare interventi già completati.</span></div><div><span class="fs11lh1-5 cf1 ff1">Quando serve la SCIA in sanatoria?</span></div><div><span class="fs11lh1-5 cf1 ff1">• La SCIA in sanatoria è richiesta in situazioni in cui non sia stata precedentemente presentata la SCIA edilizia (art. 22 D.P.R. 380/01) e, in particolare, quando sono stati effettuati lavori che rientrano nelle seguenti categorie:</span></div><div><span class="fs11lh1-5 cf1 ff1">Categorie di Interventi che Richiedono la SCIA in Sanatoria</span></div><div><span class="fs11lh1-5 cf1 ff1">• interventi di manutenzione straordinaria: questi interventi riguardano solitamente parti strutturali dell’edificio o comportano modifiche significative alle strutture preesistenti;</span></div><div><span class="fs11lh1-5 cf1 ff1">• interventi di restauro o risanamento: questi lavori, che spesso ricomprendono edifici protetti da un particolare vincolo storico-artistico, possono riguardare parti strutturali e richiedono la conformità alle normative vigenti;</span></div><div><span class="fs11lh1-5 cf1 ff1">• interventi di restauro leggero senza modificare volume, destinazione d’uso o sagoma dell’immobile: anche interventi di restauro leggero possono</span></div><div><span class="fs11lh1-5 cf1 ff1">Requisiti per la SCIA in sanatoria</span></div><div><span class="fs11lh1-5 cf1 ff1">• È necessario richiedere una SCIA in sanatoria, ma solo se comportano modifiche minori che non coinvolgono il volume totale dell’edificio, la destinazione d’uso (tra categorie non omogenee) o la sua sagoma.</span></div><div><span class="fs11lh1-5 cf1 ff1">• Quindi, se l’intervento non altera in maniera significativa l’aspetto e la funzione dell’immobile, ma è stato eseguito senza la SCIA edilizia, sarà necessario regolarizzarlo tramite la SCIA in sanatoria.</span></div><div><span class="fs11lh1-5 cf1 ff1">Modifiche introdotte dal Decreto Salva Casa</span></div><div><span class="fs11lh1-5 cf1 ff1">• Il decreto salva casa (D.L. 69/2024, convertito in legge 105/2024), con l’introduzione dell’articolo 36-bis del D.P.R. 380/01, ha reso la SCIA in sanatoria uno strumento più efficace per la regolarizzazione degli abusi edilizi.</span></div><div><span class="fs11lh1-5 cf1 ff1">• Le nuove disposizioni facilitano l’accesso alla sanatoria, riducono i tempi burocratici e ampliano le possibilità di intervento, contribuendo a una maggiore legalità nel settore edilizio.</span></div><div><span class="fs11lh1-5 cf1 ff1">• In passato, la procedura per la SCIA in sanatoria era regolata dall’articolo 37 comma 4 del D.P.R.</span></div><div><span class="fs11lh1-5 cf1 ff1">Normativa precedente sulla sanatoria edilizia</span></div><div><span class="fs11lh1-5 cf1 ff1">• 380/01 e si basava su un requisito fondamentale: la verifica della conformità urbanistica ed edilizia sia al momento della realizzazione dell’abuso, sia al momento della presentazione della richiesta di sanatoria (cosiddetta doppia conformità).</span></div><div><span class="fs11lh1-5 cf1 ff1">Semplificazione della normativa</span></div><div><span class="fs11lh1-5 cf1 ff1">• Ora, invece, la normativa è stata semplificata: è sufficiente provare la conformità urbanistica al momento della presentazione della domanda e la conformità edilizia all’epoca della realizzazione per ottenere la sanatoria.</span></div><div><span class="fs11lh1-5 cf1 ff1">Novità introdotte dalla nuova normativa</span></div><div><span class="fs11lh1-5 cf1 ff1">• Quali sono le novità?</span></div><div><span class="fs11lh1-5 cf1 ff1">• Secondo le nuove disposizioni normative, il responsabile dell’abuso o l’attuale proprietario possono presentare allo Sportello Unico dell’edilizia (ovvero, laddove non costituito, all’Ufficio tecnico comunale) la SCIA in sanatoria che dovrà essere accompagnata da una dichiarazione di un tecnico abilitato che attesti la necessaria conformità.</span></div><div><span class="fs11lh1-5 cf1 ff1">• L’epoca di realizzazione dell’intervento è provata mediante la documentazione indicata dell’art. 9-bis, comma 1-bis, del D.P.R.</span></div><div><span class="fs11lh1-5 cf1 ff1">Accertamento dello stato legittimo dell'immobile</span></div><div><span class="fs11lh1-5 cf1 ff1">• 380/2001 ai fini dello stato legittimo dell'immobile ovvero, qualora non sia possibile accertarla, mediante dichiarazione del tecnico interessato.</span></div><div><span class="fs11lh1-5 cf1 ff1">• Per gli immobili situati in zona sismica (escluse le zone a bassa sismicità), si applicano le procedure previste per la dichiarazione sulle tolleranze costruttive:</span></div><div><span class="fs11lh1-5 cf1 ff1">• l'attestazione di conformità alle norme tecniche vigenti all'epoca della realizzazione dell'intervento è funzionale all'acquisizione dell'autorizzazione da parte dell'ufficio tecnico regionale, o per l'esercizio delle modalità di controllo per gli interventi di minore rilevanza o privi di rilevanza.</span></div><div><span class="fs11lh1-5 cf1 ff1">Condizioni per il rilascio della SCIA in sanatoria</span></div><div><span class="fs11lh1-5 cf1 ff1">• Il Comune può subordinare il rilascio della SCIA in sanatoria all'esecuzione di interventi necessa</span><span class="fs11lh1-5 cf1 ff1">ri per assicurare il rispetto della normativa tecnica di settore relativa ai requisiti di sicurezza e alla rimozione delle opere che non possono essere sanate.</span></div><div><span class="fs11lh1-5 cf1 ff1">Conclusione del procedimento</span></div><div><span class="fs11lh1-5 cf1 ff1">• Per quanto riguarda la conclusione del procedimento, è previsto che, salvo eventuali sospensioni legate alla valutazione della compatibilità paesaggistica per immobili vincolati, se entro 30 giorni lo Sportello Unico non fornisce una risposta, si applica automaticamente il principio del silenzio-assenso.</span></div><div><span class="fs11lh1-5 cf1 ff1">Presentazione della SCIA in sanatoria: chi e dove</span></div><div><span class="fs11lh1-5 cf1 ff1">• Come accennato precedentemente, la SCIA in sanatoria può essere richiesta sia dal responsabile dell’abuso che dall’attuale proprietario dell’immobile.</span></div><div><span class="fs11lh1-5 cf1 ff1">• La richiesta va presentata all’ufficio tecnico del Comune competente, precisamente allo Sportello Unico dell’edilizia, attraverso professionista abilitato (GEOMETRA, INGEGNERE O ARCHITETTO).</span></div><div><span class="fs11lh1-5 cf2 ff1"><br></span></div><div><span class="fs11lh1-5 cf2 ff1">Autore Geom. Angelo Iossa</span></div></div>]]></description>
			<pubDate>Mon, 16 Dec 2024 08:37:00 GMT</pubDate>
			<enclosure url="https://www.studiotecnicoiossa.it/blog/files/scia7bfbb8a1-f775-4dd2-b029-bb97ba8163d0_thumb.jpg" length="37712" type="image/jpg" />
			<link>https://www.studiotecnicoiossa.it/blog/?scia-a-sanatoria</link>
			<guid isPermaLink="false">https://www.studiotecnicoiossa.it/blog/rss/00000000F</guid>
		</item>
		<item>
			<title><![CDATA[Variazione catastale dopo SUPERBONUS 110%]]></title>
			<author><![CDATA[Geom. Angelo Iossa]]></author>
			<category domain="https://www.studiotecnicoiossa.it/blog/index.php?category=superbonus"><![CDATA[superbonus]]></category>
			<category>imblog</category>
			<description><![CDATA[<div id="imBlogPost_00000000E"><div><header><div><span class="cf1"><span class="fs12lh1-5 ff1"><b>Variazione catastale dopo Superbonus: quando va fatta?</b></span></span><span class="cf1"><br></span><span class="cf1"><span class="fs12lh1-5 ff1">Per gli interventi Superbonus è necessario dichiarare variazioni catastali in caso di aumento di vani e volumetrie, ma anche se si stima un incremento del valore dell’immobile.</span></span><span class="cf1"><br></span><span class="cf1"><span class="fs12lh1-5 ff1"><img class="image-0" src="https://www.studiotecnicoiossa.it/images/download.jpeg"  title="" alt=""/></span></span><span class="cf1"><br></span><span class="cf1"><span class="fs12lh1-5 ff1">La Legge di Bilancio 2024 prevede ai commi 86 e 87 dell’art. 1 che l’Agenzia delle Entrate verifichi, in relazione alle unità immobiliari oggetto degli interventi agevolati dal Superbonus, la presentazione delle dichiarazioni di variazione dello stato dei beni, anche ai fini di eventuali effetti sulle rendite dell’immobile presenti in atti del catasto dei fabbricati.</span></span><span class="cf1"><br></span><span class="cf1"><span class="fs12lh1-5 ff1">In occasione dell’audizione alle commissioni Bilancio di Camera e Senato sul Piano strutturale di bilancio, il Ministro dell’Economia Giancarlo Giorgetti ha annunciato una verifica sull’attuazione di tali misure e la revisione dei valori catastali degli immobili migliorati con il Superbonus.</span></span><span class="cf1"><br></span><span class="cf1"><span class="fs12lh1-5 ff1">L’attenzione dell’opinione pubblica si è così concentrata su un adempimento rispetto al quale, evidentemente, il Fisco non ha avuto sufficiente riscontro.</span></span><span class="cf1"><br></span><span class="cf1"><span class="fs12lh1-5 ff1">Vediamo nel dettaglio in cosa consiste l’obbligo di dichiarazione di variazione dello stato dei beni per gli immobili interessati da interventi agevolati con Superbonus e in quali situazioni è previsto, tenendo conto che di un probabile nuovo intervento normativo per definire più in dettaglio condizioni e parametri per la revisione delle rendite.</span></span><span class="cf1"><br></span><span class="cf1"><span class="fs12lh1-5 ff1">Per seguire correttamente le pratiche Superbonus, ti consigliamo una specifica applicazione online per la gestione dei bonus edilizi. Per la produzione rapida di planimetrie e documentazione di progetto, puoi provare un software di progettazione architettonica di nuova generazione.</span></span><span class="cf1"><br></span><span class="cf1"><span class="fs12lh1-5 ff1">La dichiarazione di variazione catastale è obbligatoria per i lavori Superbonus?</span></span><span class="cf1"><br></span><span class="cf1"><span class="fs12lh1-5 ff1">Le disposizioni contenute nella Legge di Bilancio 2024 lasciano intendere che la presentazione della dichiarazione di variazione sia un “adempimento automatico” richiesto in ogni caso al termine dei lavori agevolati con Superbonus.</span></span><span class="cf1"><br></span><span class="cf1"><span class="fs12lh1-5 ff1">In effetti, è proprio così! Il Testo Unico dell’edilizia, infatti, prevede che entro 30 giorni dalla fine dei lavori il direttore dei lavori debba depositare in Comune prova dell’avvenuta presentazione della variazione catastale (con la procedura telematica chiamata Docfa) o una sua dichiarazione che gli interventi non hanno comportato una modifica del classamento.</span></span><span class="cf1"><br></span><span class="cf1"><span class="fs12lh1-5 ff1">L’obbligo di presentare una dichiarazione di variazione catastale si fa risalire ancora più indietro, all’articolo 20 del Rdl 652/1939, secondo cui i titolari di immobili, già censiti, sono obbligati a denunciare le variazioni nello stato che implichino mutazioni, per la consistenza e l’attribuzione della categoria e della classe.</span></span><span class="cf1"><br></span><span class="cf1"><span class="fs12lh1-5 ff1">Quando c’è l’obbligo di variazione catastale</span></span><span class="cf1"><br></span><span class="cf1"><span class="fs12lh1-5 ff1">In linea di principio, molti lavori di Superbonus non comportano l’obbligo di effettuare la variazione della rendita.</span></span><span class="cf1"><br></span><span class="cf1"><span class="fs12lh1-5 ff1">Tale obbligo, di norma, sussiste solo quando venga aumentato il numero di vani, venga incrementata la volumetria o siano apportate variazioni planimetriche; entrando nel dettaglio, determinano l’obbligo di revisione gli interventi con cui si realizza:</span></span><ul><li><span class="fs12lh1-5 ff1"><span class="cf1">la costruzione di nuove unità fuori terra ed interrate;</span></span></li></ul><ul><li><span class="fs12lh1-5 ff1"><span class="cf1">una rilevante redistribuzione degli spazi interni;</span></span></li></ul><ul><li><span class="fs12lh1-5 ff1"><span class="cf1">un cambiamento dell’utilizzazione di superfici scoperte, quali balconi o terrazze;</span></span></li></ul><ul><li><span class="fs12lh1-5 ff1"><span class="cf1">modifiche interne, quali lo spostamento di porte e tramezzi;</span></span></li></ul><ul><li><span class="fs12lh1-5 ff1"><span class="cf1">la modifica alla destinazione d’uso di vani o singoli ambienti;</span></span></li></ul><ul><li><span class="fs12lh1-5 ff1"><span class="cf1">modifiche che incidano direttamente sulla consistenza, sulla classe o sulla rendita catastale (rientrano in questo caso gli interventi su edifici collabenti, il recupero del sottotetto a fini abitativi, l’installazione di impianti che aumentano naturalmente il valore dell’immobile, l’installazione dell’impianto fotovoltaico, impianti di automazione, ascensori).</span></span></li></ul><span class="fs12lh1-5 ff1"><span class="cf1">Quando non c’è l’obbligo di variazione catastale</span><span class="cf1"><br></span><span class="cf1">Non c’è obbligo di variazione catastale per:</span></span><ul><li><span class="fs12lh1-5 ff1"><span class="cf1">l’esecuzione di interventi di ordinaria e straordinaria manutenzione (pavimenti, wc, infissi, tetto, facciata, rinforzi strutturali, messa a norma impianti) con materiali comparabili con gli originari;</span></span></li></ul><ul><li><span class="fs12lh1-5 ff1"><span class="cf1">l’installazione di impianti fotovoltaici a servizio di singole unità se la potenza installata è inferiore a KW 3 per il numero di unità immobiliari servite.</span></span></li></ul><span class="fs12lh1-5 ff1"><span class="cf1">Obbligo di revisione della rendite per aumento del valore del 15%</span><span class="cf1"><br></span><span class="cf1">Secondo quanto riportato da IlSole24ore – anche in assenza di queste condizioni – &nbsp;si dà luogo all’aggiornamento della rendita se il valore dell’immobile, a seguito di una ristrutturazione, viene incrementato di almeno il 15%.</span><span class="cf1"><br></span><span class="cf1">Più precisamente, la revisione della rendita è sempre dovuta in caso di interventi edilizi di cui all’art .3 del Testo Unico dell’Edilizia che comportino un incremento stimabile in misura non inferiore al 15% del valore di mercato e della relativa redditività (soglia corrispondente alla variazione di una classe catastale), quando gli stessi abbiano comportato una variazione della consistenza ovvero delle caratteristiche tipologiche distributive ed impiantistiche originarie delle unità immobiliari o, nel caso di interventi di restauro e risanamento conservativo, qualora abbiano interessato l’intero edificio.</span><span class="cf1"><br></span><span class="cf1">Il riferimento è alle circolari 10/2005 e 1/2006 dell’Agenzia del Territorio e alla Determinazione del 16 febbraio 2005 che – nell’ambito dell’applicazione dell’art. 1 della Legge 311/2004, comma 336 – individua il 15% come soglia incrementale del valore dell’immobile da considerare, indicatore sintetico e parametro di riferimento per la revisione della rendita.</span><span class="cf1"><br></span><span class="cf1">La stima dell’incremento, basata sul rapporto costo miglioria/valori originari va fatta in base alla tipologia di interventi.</span><span class="cf1"><br></span><span class="cf1">Esempio di intervento non soggetto a variazione catastale (fonte: IlSole24ore)</span></span><ul><li><span class="fs12lh1-5 ff1"><span class="cf1">Intervento: Sostituzione caldaia riscaldamento a gasolio con pompa di calore + infissi + esecuzione di cappotto termico</span></span></li></ul><ul><li><span class="fs12lh1-5 ff1"><span class="cf1">Pompa di calore: € 15.000.00</span></span></li></ul><ul><li><span class="fs12lh1-5 ff1"><span class="cf1">Infissi: € 10,000,00</span></span></li></ul><ul><li><span class="fs12lh1-5 ff1"><span class="cf1">Totale: € 25.000,00</span></span></li></ul><span class="fs12lh1-5 ff1"><span class="cf1">Trattandosi di intervento migliorativo si computa solo il 50% e quindi € 12.500,00</span></span><ul><li><span class="fs12lh1-5 ff1"><span class="cf1">Cappotto termico (impianto nuovo): € 30.000,55</span></span></li></ul><ul><li><span class="fs12lh1-5 ff1"><span class="cf1">Spese migliorative attuali: € 42.500,00</span></span></li></ul><ul><li><span class="fs12lh1-5 ff1"><span class="cf1">Miglioria al 1988/89 Anticipazione (spesa attuale / 2,1) = € 20.238,10</span></span></li></ul><ul><li><span class="fs12lh1-5 ff1"><span class="cf1">Valore fiscale al 1988-89 Rendita € 1.500,00 -x 100 = € 150.000,00</span></span></li></ul><ul><li><span class="fs12lh1-5 ff1"><span class="cf1">Rapporto miglioria /valore fiscale = € 20.238,10/€ 157,500,00 = 13,49%</span></span></li></ul><span class="fs12lh1-5 ff1"><span class="cf1">Il rapporto è inferiore al 15% per cui non vi è obbligo di variazione catastale a meno che non dovuta per altri motivi.</span><span class="cf1"><br></span><span class="cf1">Adeguamenti catastali: novità in arrivo</span><span class="cf1"><br></span><span class="cf1">Secondo quanto anticipato il 10 ottobre 2024 da ItaliaOggi sono allo studio nuovi parametri per stimare gli aggiornamenti dei valori dopo i lavori di ristrutturazione di una certa entità e meccanismi più stringenti per spingere all’adempimento dell’adeguamento in catasto.</span><span class="cf1"><br></span><span class="cf1">L’obiettivo è quello di rendere necessaria la revisione solo per interventi con importi consistenti (evitandola per operazioni semplici come l’installazione della caldaia o il rifacimento del tetto). Al contempo, ci sarà una azione di controllo più incisiva, con un piano straordinario di controlli e una finestra di regolarizzazione.</span><span class="cf1"><br></span><span class="cf1">La verifica delle Entrate sulla variazione catastale dopo interventi Superbonus</span><span class="cf1"><br></span><span class="cf1">Il comma 86 dispone che l’Agenzia delle Entrate verifichi se sia stata presentata – ove prevista – la dichiarazione di variazione di cui all’art. 1 del D.M. 701/1994, commi 1 e 2, con riferimento alle unità immobiliari oggetto degli interventi agevolati con Superbonus.</span><span class="cf1"><br></span><span class="cf1">Tale verifica deve essere condotta sulla base di specifiche liste selettive elaborate con l’utilizzo delle moderne tecnologie di interoperabilità e analisi delle banche dati, anche ai fini degli eventuali effetti sulla rendita dell’immobile presente in atti nel catasto dei fabbricati.</span><span class="cf1"><br></span><span class="cf1">In pratica dall’incrocio dei dati disponibili (anche l’archivio del Sistema Informativo sugli Attestati di Prestazione Energetica sarà pubblico, accessibile e integrato con il catasto), le Entrate avranno contezza degli immobili ristrutturati con i bonus edilizi con valore non adeguato al catasto.</span><span class="cf1"><br></span><span class="cf1">Facendo un passo indietro, è utile ricordare che la norma citata – l’art. 1 del D.M. 701/1994, comma 3 – prevede che la rendita proposta dal contribuente rimanga negli atti catastali come “rendita proposta” fino a quando l’Agenzia delle Entrate non provvede con mezzi di accertamento informatici o tradizionali, anche a campione, e comunque entro 12 mesi dalla data di presentazione delle dichiarazioni, alla determinazione della rendita catastale definitiva.</span><span class="cf1"><br></span><span class="cf1">Come disposto dall’art. 4 del D.L. 853/1984, comma 21, l’Agenzia delle Entrate ha facoltà di verificare le caratteristiche degli immobili oggetto delle dichiarazioni, ed eventualmente modificarne le risultanze censuarie iscritte in catasto.</span><span class="cf1"><br></span><span class="cf1"><b>Inoltre, se tale dichiarazione non risulta presentata, l’Agenzia delle Entrate può inviare al contribuente una comunicazione specifica – una lettera di compliance – per sollecitare l’adempimento richiesto.<br>In caso di inadempimento entro il 90 giorni, l’Agenzia delle Entrate si avvarrà di interventi in surroga per aggiornare le rendite e applicare la sanzione.</b></span></span></div><div><span class="fs12lh1-5 ff1"><span class="cf1"><br></span></span></div><div><span class="fs12lh1-5 ff1"><span class="cf1"><br></span></span></div><div><span class="fs12lh1-5 ff1"><span class="cf1"><br></span></span></div><div><span class="fs12lh1-5 ff1"><span class="cf1"><br></span></span></div><div><span class="fs10lh1-5 ff1"><span class="cf1">fonte: ACCA</span></span></div></header></div><div itemprop="image" itemscope="itemscope" itemtype="https://schema.org/ImageObject"></div><div></div></div>]]></description>
			<pubDate>Thu, 10 Oct 2024 17:46:00 GMT</pubDate>
			<enclosure url="https://www.studiotecnicoiossa.it/blog/files/AdobeStock_413566319-superbonus-k8wH--1440x752-Quotidiani_Verticali-Web_thumb.jpg" length="138421" type="image/jpg" />
			<link>https://www.studiotecnicoiossa.it/blog/?variazione-catastale-dopo-superbonus-110-</link>
			<guid isPermaLink="false">https://www.studiotecnicoiossa.it/blog/rss/00000000E</guid>
		</item>
		<item>
			<title><![CDATA[BONUS nel 2025]]></title>
			<author><![CDATA[geom. Angelo Iossa]]></author>
			<category domain="https://www.studiotecnicoiossa.it/blog/index.php?category=edilizia"><![CDATA[edilizia]]></category>
			<category>imblog</category>
			<description><![CDATA[<div id="imBlogPost_00000000D"><div><strong><b><span class="fsNaNlh1-5 cf1 ff1">I bonus edilizi disponibili nel 2025</span></b></strong></div><div>Le agevolazioni legate a <strong><b><span class="fsNaNlh1-5 cf1 ff1">Superbonus condomini</span></b></strong> subiranno un corposo décalage <strong><b><span class="fsNaNlh1-5 cf1 ff1">passando al 65%</span></b></strong>.</div><div>Il <strong><b><span class="fsNaNlh1-5 cf1 ff1">Bonus ristrutturazioni</span></b></strong> passerà al <strong><b><span class="fsNaNlh1-5 cf1 ff1">36%</span></b></strong> su un <strong><b><span class="fsNaNlh1-5 cf1 ff1">massimo di 48mila euro</span></b></strong>.</div><div>L’<strong><b><span class="fsNaNlh1-5 cf1 ff1"><b>Ecobonus</b></span></b></strong><strong><b><span class="fsNaNlh1-5 cf1 ff1">, il</span></b><b><span class="fsNaNlh1-5 cf1 ff1"> </span></b><b><span class="fsNaNlh1-5 cf1 ff1"><b>Sismabonus</b></span></b></strong>e il <strong><b><span class="fsNaNlh1-5 cf1 ff1">Sismabonus acquisti</span></b></strong>, per le spese documentate e sostenute dal 1 gennaio 2025 e fino al 31 dicembre 2027, prevedono una detrazione del <strong><b><span class="fsNaNlh1-5 cf1 ff1">36%</span></b></strong> fino ad un ammontare massimo di <strong><b><span class="fsNaNlh1-5 cf1 ff1">48.000 euro</span></b></strong> da ripartire in dieci rate annuali di pari importo.</div><div>Il <strong><b><span class="fsNaNlh1-5 cf1 ff1"><b>Bonus Barriere architettoniche al 75%</b></span></b></strong> per gli interventi finalizzati al superamento e all’eliminazione di barriere architettoniche resta in vigore per tutto il 2025.</div><div><img class="image-0" src="https://www.studiotecnicoiossa.it/images/20181116_093147.jpg"  title="" alt=""/><br></div><div><span class="fs10lh1-5">fonte: ACCA</span></div></div>]]></description>
			<pubDate>Thu, 10 Oct 2024 11:28:00 GMT</pubDate>
			<enclosure url="https://www.studiotecnicoiossa.it/blog/files/patente-a-crediti-nei-cantieri_thumb.jpg" length="135260" type="image/jpg" />
			<link>https://www.studiotecnicoiossa.it/blog/?bonus-nel-2025</link>
			<guid isPermaLink="false">https://www.studiotecnicoiossa.it/blog/rss/00000000D</guid>
		</item>
		<item>
			<title><![CDATA[Accertamento di conformità]]></title>
			<author><![CDATA[Geom. Angelo Iossa]]></author>
			<category domain="https://www.studiotecnicoiossa.it/blog/index.php?category=condono_edilizio"><![CDATA[condono edilizio]]></category>
			<category>imblog</category>
			<description><![CDATA[<div id="imBlogPost_00000000C"><div><b class="fs12lh1-5 ff1">Parziali difformità accertate al sopralluogo o ispezione, quando considerarle regolarizzate</b></div><div><span class="fs12lh1-5 ff1">Torno sul tema delle certificazioni di Abitabilità e Agibilità rilasciate in passato, previo sopralluogo e ispezione di funzionario pubblico per accertare l’avvenuta esecuzione dell’opera in conformità al progetto approvato, introdotto con L. 105/2024 all’articolo 34-ter comma 4 D.P.R. 380/01.</span></div> &nbsp;<img class="image-0" src="https://www.studiotecnicoiossa.it/images/images.jpeg"  title="" alt=""/><br><div><span class="fs12lh1-5 ff1">Con questa recente disposizione <b>è possibile considerare (a certe condizioni) come tolleranze edilizie quelle parziali difformità effettuate rispetto al titolo abilitativo rilasciato</b> (e quindi licenze edilizie e concessioni), quando il rilascio dell’abitabilità da parte del Comune è stato preceduto da apposite ispezioni e sopralluoghi per accertare la regolarità sotto due profili:</span></div><ul type="disc"><li><span class="fs12lh1-5 ff1"><b>edilizi </b>(conformità &nbsp;&nbsp;&nbsp;&nbsp;&nbsp;al progetto approvato)</span></li><li><span class="fs12lh1-5 ff1"><b>sanitari </b>e &nbsp;&nbsp;&nbsp;&nbsp;&nbsp;salubrità (prosciugatura dei muri e altro)</span></li> </ul><div><span class="fs12lh1-5 ff1">Questo tipo di accertamento era imposto dall’articolo 221 del R.D. 1265/1934, appositamente per la procedura di rilascio dell’autorizzazione ad abitare (cioè <b>Abitabilità</b>); tuttavia questa nuova forma di regolarizzazione semplificata si applica anche a quella analoga che autorizzava l’uso di immobili non residenziali: <b>l’Agibilità</b>.</span></div> &nbsp;<div><b class="fs12lh1-5 ff1">Abitabilità regolarizzante, le condizioni</b><span class="fs14lh1-5"> </span></div><div><span class="fs12lh1-5 ff1">Intanto è opportuno riportare il testo esteso del comma 4 art. 34-ter DPR 380/01, che sembrerebbe godere di autonomia rispetto ai tre precedenti commi, relativi alle mancate varianti di parziali difformità a licenze edilizie rilasciate ante L. 10/1977 (occhio alle licenze prorogate fino al 1984):</span></div><div><span class="fs12lh1-5 ff1">4. <i>Le parziali difformità, realizzate durante l’esecuzione dei lavori oggetto di un titolo abilitativo, accertate all’esito di sopralluogo o ispezione dai funzionari incaricati di effettuare verifiche di conformità edilizia, rispetto alle quali non sia seguito un ordine di demolizione o riduzione in pristino e sia stata rilasciata la certificazione di abitabilità o di agibilità nelle forme previste dalla legge non annullabile ai sensi dell’articolo 21-nonies della legge 7 agosto 1990, n. 241, sono soggette, in deroga a quanto previsto dall’articolo 34, alla disciplina delle tolleranze costruttive di cui all’articolo 34-bis</i></span></div> &nbsp;<div><span class="fs12lh1-5 ff1">Risultano necessari vari presupposti e condizioni, che possiamo sintetizzare:</span><span class="fs14lh1-5"> </span></div><ul type="disc"><li><span class="fs12lh1-5 ff1"><b>parziali &nbsp;&nbsp;&nbsp;&nbsp;&nbsp;difformità </b>dal titolo abilitativo (licenze o concessioni), &nbsp;&nbsp;&nbsp;&nbsp;&nbsp;restando esclusi &nbsp;&nbsp;&nbsp;&nbsp;&nbsp;gli illeciti di variazioni essenziali o superiori, oppure quelli &nbsp;&nbsp;&nbsp;&nbsp;&nbsp;effettuati autonomamente rispetto a titolo rilasciati;</span></li><li><span class="fs12lh1-5 ff1"><b>sopralluoghi &nbsp;&nbsp;&nbsp;&nbsp;&nbsp;e ispezioni</b> effettuati dai funzionari pubblici, per verificare la &nbsp;&nbsp;&nbsp;&nbsp;&nbsp;conformità edilizia;</span></li><li><span class="fs12lh1-5 ff1"><b>mancata &nbsp;&nbsp;&nbsp;&nbsp;&nbsp;emissione di ordinanze demolizione</b> e rimessa in pristino;</span></li><li><span class="fs12lh1-5 ff1"><b>rilascio &nbsp;&nbsp;&nbsp;&nbsp;&nbsp;successivo di Abitabilità o Agibilità,</b> non annullabili oggi con &nbsp;&nbsp;&nbsp;&nbsp;&nbsp;art. 21-nonies L. 241/90;</span></li> </ul> &nbsp;<div><span class="fs12lh1-5 ff1">Proprio perchè configurano tolleranza costruttiva ed esecutiva, rinviando all’articolo 34-bis, restano comunque soggette a:</span></div><ol start="1" type="1"><li><span class="fs12lh1-5 ff1">eventuale Attestazione &nbsp;&nbsp;&nbsp;&nbsp;&nbsp;di conformità sismica inserita nel relativo comma 3-bis per zone &nbsp;&nbsp;&nbsp;&nbsp;&nbsp;sismiche escluse quelle a bassa sismicità;</span></li><li><span class="fs12lh1-5 ff1">rispetto &nbsp;&nbsp;&nbsp;&nbsp;&nbsp;delle norme di settore e vincolistiche;</span></li> </ol> &nbsp;<div><span class="fs12lh1-5 ff1">Inoltre, proprio questo meccanismo di equiparazione a tolleranze edilizie, rende superfluo depositare questa situazione nei confronti del Comune: caso mai<b> sarà necessario attestare questa circostanza e condizioni in sede di attestazione tolleranze</b> per atti di trasferimento immobiliare tra vivi, oppure per pratiche edilizie inerenti opere (CILA, SCIA e Permesso di Costruire).</span></div> <img class="image-1" src="https://www.studiotecnicoiossa.it/images/images.png"  title="" alt=""/><br> &nbsp;<div><b class="fs12lh1-5 ff1">Accertamento parziali difformità dai funzionari pubblici: è sufficiente sopralluogo o la verbalizzazione precisa?</b></div><div><span class="fs12lh1-5 ff1">In quale modo si potrà <b>considerare assolto l’accertamento ispettivo pubblico della parziale difformità</b> e della mancata variante all’epoca? In presenza di difformità parziali accertate al sopralluogo dei funzionari pubblici, si stanno profilando <b>due possibili scenari</b> applicativi per considerarle regolarizzate o meno:</span></div><ol start="1" type="1"><li><span class="fs12lh1-5 ff1"><b>Sostanziale</b>: &nbsp;&nbsp;&nbsp;&nbsp;&nbsp;occorre l’effettiva descrizione e quantificazione dell’irregolarità allora &nbsp;&nbsp;&nbsp;&nbsp;&nbsp;presente</span></li><li><span class="fs12lh1-5 ff1"><b>Formale</b>: &nbsp;&nbsp;&nbsp;&nbsp;&nbsp;è sufficiente il sopralluogo e relativa dichiarazione</span></li> </ol> &nbsp;<div><span class="fs12lh1-5 ff1">Su questo punto sarà necessario un provvedimento correttivo, perchè tra i dipendenti pubblici e Tecnici professionisti si stanno già formando due scuole di pensiero. Personalmente <b>auspico che prevalga l’orientamento formale,</b> ritenendo sufficiente il sopralluogo o ispezione del funzionario incarico, che dovrà però risultare dai documenti, con loro verbale allegato al procedimento di rilascio dell’Abitabilità o Agibilità.</span></div><div><span class="fs12lh1-5 ff1">Provo a fare un <b>esempio parallelo al </b><b>collaudo statico delle strutture</b>: l’obbligo è formale, è vero, ma implica anche l’esecuzione di tutte le verifiche, sopralluoghi, accertamenti, provini e saggi che il collaudatore ritiene necessario; se per qualche motivo costui non le ha eseguite, e ha ritenuto sufficiente il quadro documentale e ispettivo per dichiarare collaudata la struttura, è una sua valutazione discrezionale sotto propria responsabilità.</span></div><div><span class="fs12lh1-5 ff1">E analogamente, riterrei calzante ed equivalente lo stesso approccio del collaudatore statico a quello della verifica di conformità edilizia prevista per Abitabilità e Agibilità del passato, svolte secondo il R.D. 1265/34 e fino al D.P.R. 425/94, da cui tale dichiarazione di conformità fu conferita al Direttore dei Lavori.</span></div><div><br></div><div><span class="fs10lh1-5 cf1">Geom. A.Iossa</span></div><div><span class="fs10lh1-5 cf1">Fonte Ing. Carlo Pagliai</span></div></div>]]></description>
			<pubDate>Sat, 21 Sep 2024 09:12:00 GMT</pubDate>
			<enclosure url="https://www.studiotecnicoiossa.it/blog/files/images_thumb.jpg" length="6985" type="image/jpg" />
			<link>https://www.studiotecnicoiossa.it/blog/?accertamento-di-conformita</link>
			<guid isPermaLink="false">https://www.studiotecnicoiossa.it/blog/rss/00000000C</guid>
		</item>
		<item>
			<title><![CDATA[BOZZA NUOVO DPR 380/01 - DEC. SALVA CASA]]></title>
			<author><![CDATA[Geom. Angelo Iossa]]></author>
			<category domain="https://www.studiotecnicoiossa.it/blog/index.php?category=edilizia"><![CDATA[edilizia]]></category>
			<category>imblog</category>
			<description><![CDATA[<div id="imBlogPost_00000000B">Clicca <a href="https://www.studiotecnicoiossa.it/files/STI_dpr380.01-coordinato-al-DL-SalvaCasa.pdf" onclick="return x5engine.imShowBox({ media:[{type: 'iframe', url: 'https://www.studiotecnicoiossa.it/files/STI_dpr380.01-coordinato-al-DL-SalvaCasa.pdf', width: 1920, height: 1080, description: ''}]}, 0, this);" class="imCssLink">qui</a> per il testo coordinato in bozza</div>]]></description>
			<pubDate>Thu, 30 May 2024 09:49:00 GMT</pubDate>
			<enclosure url="https://www.studiotecnicoiossa.it/blog/files/Cattura_thumb_0fnldyvy.jpg" length="23607" type="image/jpg" />
			<link>https://www.studiotecnicoiossa.it/blog/?bozza-nuovo-dpr-380-01---dec--salva-casa</link>
			<guid isPermaLink="false">https://www.studiotecnicoiossa.it/blog/rss/00000000B</guid>
		</item>
		<item>
			<title><![CDATA[DECRETO SALVA CASA - GAZZETTA UFFICIALE]]></title>
			<author><![CDATA[Geom. Angelo Iossa]]></author>
			<category domain="https://www.studiotecnicoiossa.it/blog/index.php?category=edilizia"><![CDATA[edilizia]]></category>
			<category>imblog</category>
			<description><![CDATA[<div id="imBlogPost_00000000A"><div><header><div><span class="fs11lh1-5 cf1 ff1">Clicca qui per vedere e/o scaricare il <a href="https://www.studiotecnicoiossa.it/files/Dl_casa_in_Gu.pdf" onclick="return x5engine.imShowBox({ media:[{type: 'iframe', url: 'https://www.studiotecnicoiossa.it/files/Dl_casa_in_Gu.pdf', width: 1920, height: 1080, description: ''}]}, 0, this);" class="imCssLink">Salva-casa in "Gazzetta":</a> </span></div><div><br></div></header></div><div><span class="cf1">Arriva in</span><span class="cf1"> </span><strong><span class="fs11lh1-5 cf1 ff2">Gazzetta ufficiale</span></strong><span class="cf1"> </span><span class="cf1">il decreto battezzato dallo stesso governo - con uno slancio di estrema positività - "</span><strong><span class="fs11lh1-5 cf1 ff2">salva-casa</span></strong><span class="cf1">". Il provvedimento non punta a salvare le abitazioni da pericoli imminenti come si potrebbe immaginare soffermandosi solo sul nome, ma più semplicemente</span><span class="cf1"> </span><strong><span class="fs11lh1-5 cf1 ff2">introduce delle facilitazioni per sanare piccoli abusi edilizi e difformità</span></strong><span class="cf1">,</span><span class="cf1"> </span><strong><span class="fs11lh1-5 cf1 ff2">aiutando anche i cambi di destinazione d'uso senza opere</span></strong><span class="cf1">.</span></div><div><span class="cf1">Le novità sono in vigore dal 30 maggio 2024.</span></div><div><span class="cf1">L'azione del decreto si divide su</span><span class="cf1"> </span><strong><span class="fs11lh1-5 cf1 ff2">cinque principali fronti</span></strong><span class="cf1">: rende più facile dimostrare lo</span><span class="cf1"> </span><strong><span class="fs11lh1-5 cf1 ff2">stato legittimo</span></strong><span class="cf1"> </span><span class="cf1">di un immobile o di un'unità immobiliare; rende più permissive le regole per le</span><span class="cf1"> </span><strong><span class="fs11lh1-5 cf1 ff2">tolleranze costruttive</span></strong><span class="cf1">, ma limitatamente agli interventi realizzati entro il 24 maggio 2024; semplifica l'</span><strong><span class="fs11lh1-5 cf1 ff2">accertamento di conformità</span></strong><span class="cf1"> </span><span class="cf1">e la relativa</span><span class="cf1"> </span><strong><span class="fs11lh1-5 cf1 ff2">verifica doppia</span></strong><span class="cf1"> </span><span class="cf1">(urbanistica ed edilizia in riferimento al momento in cui si presenta la domanda di sanatoria e al tempo in cui è stato realizzato l'intervento da sanare), ma nelle sole ipotesi di difformità parziali; inoltre, si semplificano i cambi di</span><span class="cf1"> </span><strong><span class="fs11lh1-5 cf1 ff2">destinazione d'uso</span></strong><span class="cf1"> </span><span class="cf1">se non comportano la realizzazione di opere edilizie; infine, viene allungato l'elenco delle attività in</span><span class="cf1"> </span><strong><span class="fs11lh1-5 cf1 ff2">edilizia libera</span></strong><span class="cf1">.</span></div></div>]]></description>
			<pubDate>Thu, 30 May 2024 09:30:00 GMT</pubDate>
			<enclosure url="https://www.studiotecnicoiossa.it/blog/files/decreto-salva-casa--1-_thumb.png" length="429734" type="image/png" />
			<link>https://www.studiotecnicoiossa.it/blog/?decreto-salva-casa---gazzetta-ufficiale</link>
			<guid isPermaLink="false">https://www.studiotecnicoiossa.it/blog/rss/00000000A</guid>
		</item>
		<item>
			<title><![CDATA[Accertamento di Conformità (DECRETO SALVA CASA)]]></title>
			<author><![CDATA[Geom. Angelo Iossa]]></author>
			<category domain="https://www.studiotecnicoiossa.it/blog/index.php?category=edilizia"><![CDATA[edilizia]]></category>
			<category>imblog</category>
			<description><![CDATA[<div id="imBlogPost_000000009"><div><span class="fs12lh1-5 cf1">Accertamento di conformità a doppia via.</span></div><div><span class="fs12lh1-5 cf1">L'accertamento di conformità si sdoppia: l'iter, così come lo conosciamo oggi che prevede la <strong>doppia conformità edilizia e urbanistica</strong> resta in piedi per gli interventi realizzati in assenza di titolo, in totale difformità o con variazioni essenziali.</span></div><div><span class="fs12lh1-5 cf1">Un nuovo e semplificato accertamento di conformità va a disciplinare la <strong>sanatoria in caso di parziali difformità</strong>. Un nozione - quella di parziale difformità - in cui rientrano gli aumenti di cubatura o di superficie di scarsa consistenza, come affermato dalla giurisprudenza, che sforano le percentuali proprie delle tolleranze costruttive. È il caso, ad esempio, della classica verandina sul balcone.</span></div><div><span class="fs12lh1-5 cf1">Un iter che - come si diceva - beneficia dell'alleggerimento della cosiddetta doppia conformità. Il nuovo iter, che viene introdotto aggiungendo un nuovo articolo al Tu Edilizia (il 36-bis) è chiamato "<strong>accertamento di conformità nelle ipotesi di parziali difformità</strong>". Più nel dettaglio, si occupa degli interventi realizzati in parziale difformità dal permesso di costruire o dalla Scia o in assenza o in difformità dalla Scia. Per sanarli, il responsabile dell'abuso (o l'attuale proprietario dell'immobile) può ottenere il <strong>permesso di costruire</strong> e presentare la <strong>segnalazione certificata di inizio attività</strong> in sanatoria se l'intervento è conforme alla disciplina urbanistica vigente al momento della presentazione della domanda, nonché ai requisiti prescritti dalla disciplina edilizia vigente al momento della realizzazione.</span></div><div><span class="fs12lh1-5 cf1">Dunque, c'è sempre una verifica doppia della conformità, ma più semplice. Ad attestare le conformità è il professionista abilitato che ne dimostra il rispetto nella documentazione da produrre con la richiesta del permesso di costruire o con la Scia in sanatoria.</span></div><div><span class="fs12lh1-5 cf1">Il rilascio del permesso e della Scia in sanatoria sono subordinati al pagamento di una <strong>sanzione pecuniaria</strong> pari al doppio dell'aumento del valore venale dell'immobile conseguente alla realizzazione degli interventi. Tali sanzioni sono comprese tra <strong>1.032 e 30.984 euro</strong>. Nelle ipotesi in cui venga accertata la compatibilità paesaggistica, si applica anche una sanzione equivalente al maggiore importo tra il danno arrecato e il profitto conseguito mediante la trasgressione. In caso di rigetto della domanda si applica la sanzione demolitoria.</span></div></div>]]></description>
			<pubDate>Thu, 30 May 2024 09:26:00 GMT</pubDate>
			<enclosure url="https://www.studiotecnicoiossa.it/blog/files/Cattura_thumb.jpg" length="33336" type="image/jpg" />
			<link>https://www.studiotecnicoiossa.it/blog/?accertamento-di-conformita--decreto-salva-casa-</link>
			<guid isPermaLink="false">https://www.studiotecnicoiossa.it/blog/rss/000000009</guid>
		</item>
		<item>
			<title><![CDATA[DECRETO SALVA CASA (condono)]]></title>
			<author><![CDATA[Geom. Angelo Iossa]]></author>
			<category domain="https://www.studiotecnicoiossa.it/blog/index.php?category=condono_edilizio"><![CDATA[condono edilizio]]></category>
			<category>imblog</category>
			<description><![CDATA[<div id="imBlogPost_000000008"><div><span class="imUl fs12lh1-5 cf1 ff1"><b>Clicca qui per le <span><a href="https://www.studiotecnicoiossa.it/files/Decreto-Legge-Salva-Casa_MIT.pdf" onclick="return x5engine.imShowBox({ media:[{type: 'iframe', url: 'https://www.studiotecnicoiossa.it/files/Decreto-Legge-Salva-Casa_MIT.pdf', width: 1920, height: 1080, description: ''}]}, 0, this);" class="imCssLink">SLIDE</a></span> informative del Decreto.</b></span></div><div><span class="fs12lh1-5 cf1 ff1"><br></span></div><div><main role="main" itemscope="itemscope" itemtype="https://schema.org/Blog"><article itemscope="itemscope" itemtype="https://schema.org/BlogPosting" itemprop="blogPost"><div><span class="fs12lh1-5 cf1 ff1">Quali irregolarità potranno essere sanate con il condono edilizio 2024 (“decreto salva casa 2024”)?</span></div><div><span class="fs12lh1-5 cf1 ff1">Quali abusi potranno essere sanati? Ecco le tre tipologie di difformità (o tre <strong><b>livelli crescenti di irregolarità</b></strong>) che potranno essere sanate con il condono edilizio 2024:</span></div><div><ul><li><span class="fs12lh1-5 cf1 ff1">le <strong><b>difformità formali</b></strong>, derivanti da incertezze interpretative della disciplina vigente rispetto alla dimostrazione dello stato legittimo dell’immobile;</span></li><li><span class="fs12lh1-5 cf1 ff1">le <strong><b>difformità edilizie interne</b></strong> (cd. “<b><b><strong>tolleranze costruttive</strong></b></b>”), risultanti da interventi spesso stratificati nel tempo, realizzati dai proprietari dell’epoca in assenza di formale autorizzazione o segnalazione, rendendo oggi difficile comprovare lo stato legittimo dell’unità immobiliare;</span></li><li><span class="fs12lh1-5 cf1 ff1">le difformità che potevano essere sanate all’epoca di realizzazione dell’intervento, ma non sanabili oggi, a causa della disciplina della “<b><b><strong>doppia conformità</strong></b></b>” che, richiedendo la conformità alla disciplina edilizia vigente sia al momento di realizzazione dell’intervento sia al momento della richiesta del titolo, non consentono di conseguire il permesso o la segnalazione in sanatoria per moltissimi interventi qualificati come parziali difformità, risalenti nel tempo, pur se conformi agli standard urbanistici.</span></li></ul></div><div><span class="fs12lh1-5 cf1 ff1">Le modifiche del “decreto salva casa 2024” al Testo Unico Edilizia</span></div><div><span class="fs12lh1-5 cf1 ff1">Alla luce delle misure adottate, il piano “decreto salva casa” apporta modifiche puntuali al <b>D.P.R. 380/2001</b> con riferimento alle disposizioni su:</span></div><div><ul><li><span class="fs12lh1-5 cf1 ff1">edilizia libera;</span></li><li><span class="fs12lh1-5 cf1 ff1">stato legittimo degli immobili;</span></li><li><span class="fs12lh1-5 cf1 ff1">mutamento della destinazione d’uso in relazione a singole unità immobiliari;</span></li><li><span class="fs12lh1-5 cf1 ff1">sorte delle opere acquisite dal Comune eseguite in assenza di permesso di costruire, in totale difformità o con variazioni essenziali;</span></li><li><span class="fs12lh1-5 cf1 ff1">tolleranze costruttive;</span></li><li><span class="fs12lh1-5 cf1 ff1">superamento della cd. doppia conformità, limitatamente alle parziali difformità dal permesso di costruire o dalla segnalazione certificata di inizio attività, nonché alle ipotesi di assenza o difformità dalla segnalazione certificata di inizio attività.</span></li></ul></div><div><span class="fs12lh1-5 cf1 ff1">Quando entra in vigore il “decreto salva casa 2024”?</span></div><div><span class="fs12lh1-5 cf1 ff1">Il decreto salva casa 2024, approvato nella mattinata di venerdì 24 maggio 2024 su proposta di Ministro Matteo Salvini, dovrà essere pubblicato in Gazzetta Ufficiale (nelle prossime ore) per far sì che esso acquisisca efficacia. È importante sottolineare che il decreto dovrà essere approvato con legge di conversione dal Parlamento entro 60 giorni dalla sua pubblicazione in Gazzetta Ufficiale.</span></div><div><span class="fs12lh1-5 cf1 ff1">Quanto costa il nuovo condono edilizio 2024?</span></div><div><span class="fs12lh1-5 cf1 ff1">Il decreto in questione stabilisce dei costi per regolarizzare le irregolarità formali presenti in numerosi immobili italiani. Tali costi, come definiti dalla bozza di decreto, saranno proporzionati all’irregolarità riscontrata e all’incremento di valore dell’immobile.</span></div><div><span class="fs12lh1-5 cf1 ff1">Il rilascio del permesso e la segnalazione certificata di inizio attività in sanatoria saranno condizionati dal pagamento di una sanzione pecuniaria pari al doppio dell’incremento del valore venale dell’immobile risultante dagli interventi effettuati, con un importo compreso tra 1.032 euro e 30.984 euro.</span></div><div><span class="fs12lh1-5 cf1 ff1">Inoltre, è importante sottolineare che un terzo delle somme recuperate potrà essere utilizzato dai singoli Comuni per i seguenti interventi:</span></div><div><ul><li><span class="fs12lh1-5 cf1 ff1">demolizione di opere abusive;</span></li><li><span class="fs12lh1-5 cf1 ff1">realizzazione di interventi di rigenerazione urbana;</span></li><li><span class="fs12lh1-5 cf1 ff1">recupero e valorizzazione di immobili e spazi urbani dismessi;</span></li><li><span class="fs12lh1-5 cf1 ff1">iniziative sociali, culturali o di recupero ambientale.</span></li></ul></div><div><span class="fs12lh1-5 cf1 ff1">In quanto tempo si ottiene una sanatoria?</span></div><div><span class="fs12lh1-5 cf1 ff1">Il responsabile dell’ufficio comunale deve pronunciarsi sulla richiesta di permesso in sanatoria entro 45 giorni. Decorso questo termine, la richiesta sarà accolta in automatico.</span></div><div><span class="fs12lh1-5 cf1 ff1">Più attività in edilizia libera</span></div><div><span class="fs12lh1-5 cf1 ff1">Sono introdotte modifiche all’articolo 6, comma 1, del TUE finalizzate ad ampliare le categorie di interventi che possono essere eseguiti in edilizia libera, cioè quegli interventi che non richiedono alcun titolo abilitativo né permesso e/o comunicazione, in quanto non eccessivamente impattanti, come:</span></div><div><ul><li><span class="fs12lh1-5 cf1 ff1">interventi di <strong><b>manutenzione ordinaria</b></strong>;</span></li><li><span class="fs12lh1-5 cf1 ff1">installazione di <strong><b>pompe di calore &lt; 12 kw</b></strong>;</span></li><li><span class="fs12lh1-5 cf1 ff1">rimozione di <strong><b>barriere architettoniche</b></strong>;</span></li><li><span class="fs12lh1-5 cf1 ff1">installazione di <strong><b>vetrate panoramiche amovibili e totalmente trasparenti</b></strong> (VEPA) dirette ad assolvere a funzioni temporanee di protezione dagli agenti atmosferici, miglioramento delle prestazioni acustiche ed energetiche, riduzione delle dispersioni termiche, parziale impermeabilizzazione dalle acque meteoriche non solo dei <strong><b>balconi</b></strong> o di logge <strong><b>ma anche di porticati</b><b> </b></strong>rientranti all’interno dell’edificio.</span></li></ul></div><div><span class="fs12lh1-5 cf1 ff1">Nella relazione illustrativa al decreto si precisa che l’installazione di vetrate panoramiche amovibili e totalmente trasparenti (VEPA) rientra tra le attività di edilizia libera a patto che tali elementi:</span></div><div><ul><li><span class="fs12lh1-5 cf1 ff1">non configurino spazi stabilmente chiusi con conseguente variazione di volumi e di superfici, come definiti dal regolamento edilizio-tipo, che possano generare nuova volumetria o comportare il mutamento della destinazione d’uso dell’immobile anche da superficie accessoria a superficie utile;</span></li><li><span class="fs12lh1-5 cf1 ff1">debbano favorire una naturale microaerazione che consenta la circolazione di un costante flusso di arieggiamento a garanzia della salubrità dei vani interni domestici ed avere caratteristiche tecnico-costruttive e profilo estetico tali da ridurre al minimo l’impatto visivo e l’ingombro apparente e da non modificare le preesistenti linee architettoniche.</span></li></ul></div><div><span class="fs12lh1-5 cf1 ff1">Alla luce di queste previsioni, recependo l’orientamento giurisprudenziale prevalente in materia, si introduce una nuova fattispecie di intervento di edilizia libera. Si tratta in particolare di opere di protezione dal sole e dagli agenti atmosferici la cui struttura principale sia costituita da <strong><b>tende</b></strong>, <strong><b>tende da sole</b></strong>,<strong><b> </b><b>tende da esterno</b></strong>, <strong><b>tende a pergola con telo retrattile anche impermeabile</b></strong>,<strong><b> </b><b>tende a pergola con elementi di protezione solare mobili o regolabili</b></strong>, e che sia addossata o annessa agli immobili o alle unità immobiliari, anche con strutture fisse necessarie al sostegno e all’estensione dell’opera.</span></div><div><span class="fs12lh1-5 cf1 ff1">La disposizione precisa che le opere in oggetto non possono determinare la creazione di un organismo edilizio rilevante e, comunque, di uno spazio stabilmente chiuso, con conseguente variazione di volumi e di superfici, devono avere caratteristiche tecnico-costruttive e profilo estetico tali da ridurre al minimo l’impatto visivo e l’ingombro apparente e devono armonizzarsi alle preesistenti linee architettoniche.</span></div><div><span class="fs12lh1-5 cf1 ff1">Nuove regole per attestare lo stato legittimo</span></div><div><span class="fs12lh1-5 cf1 ff1">Sono apportate modifiche alla disciplina relativa alla documentazione amministrativa inerente allo stato legittimo degli immobili contenuta all’articolo 9-<em>bis </em>del D.P.R. 380/2001.</span></div><div><span class="fs12lh1-5 cf1 ff1">La norma in vigore prevede che lo stato legittimo dell’immobile o dell’unità immobiliare è quello stabilito dal titolo abilitativo che ne ha previsto originariamente la costruzione, ovvero che ne ha legittimato la stessa, e da quello che ha disciplinato l’ultimo intervento edilizio integrati con gli eventuali titoli successivi che hanno abilitato interventi parziali.</span></div><div><span class="fs12lh1-5 cf1 ff1">Le modifiche proposte sono volte a consentire che lo stato legittimo dell’immobile o dell’unità immobiliare sia stabilito, alternativamente:</span></div><div><ul><li><span class="fs12lh1-5 cf1 ff1">o dal titolo abilitativo che ne ha previsto la costruzione (o che ne ha legittimato la stessa);</span></li><li><span class="fs12lh1-5 cf1 ff1">oppure da quello che ha disciplinato l’ultimo intervento edilizio che ha interessato l’intero immobile o l’intera unità immobiliare (a condizione che tale titolo sia stato rilasciato all’esito di un procedimento che abbia verificato l’esistenza del titolo abilitativo che ne ha previsto la costruzione o che ne ha legittimato la stessa), integrati con gli eventuali titoli successivi che hanno abilitato interventi parziali.</span></li></ul></div><div><span class="fs12lh1-5 cf1 ff1">Con riferimento a quest’ultima opzione, si intende valorizzare l’affidamento del privato nei casi in cui gli uffici tecnici comunali abbiano nel passato “espressamente accertato” parziali difformità rispetto al titolo edilizio, ma non le abbiano considerate rilevanti (procedendo alla contestazione dell’abuso). Pertanto, è ragionevole disporre che l’amministrazione, in sede di accertamento dello stato legittimo, non possa contestare una difformità che nel procedimento relativo all’ultimo intervento edilizio abbia espressamente considerato tollerabile emanando un provvedimento favorevole al privato.</span></div><div><span class="fs12lh1-5 cf1 ff1">Le modifiche consentono di semplificare il <strong><b>riconoscimento dello stato legittimo dell’immobile</b></strong>, soprattutto nei casi in cui si è in presenza di difformità formali, stabilendo che lo stesso possa essere comprovato alternativamente in base al titolo originario che ha permesso la sua costruzione ovvero da quello conseguito in seguito ad eventuali interventi costruttivi sul medesimo, in tal modo superando le difficoltà, riscontrate a legislazione vigente, nel comprovare lo stato legittimo degli edifici, soprattutto in riferimento agli immobili di passata realizzazione per i quali i titoli abilitativi risalgono ad epoche risalenti nel tempo.</span></div><div><span class="fs12lh1-5 cf1 ff1">Per le medesime finalità, si prevede, inoltre, che, previo pagamento delle relative sanzioni o oblazioni, siano ricompresi tra i predetti titoli abilitativi anche quelli rilasciati o formati in applicazione delle previsioni contenute nel citato testo unico sull’edilizia concernenti i casi di accertamento di conformità (articoli 36 e 36-<em>bis </em>del TUE) ovvero i casi di interventi eseguiti in base a permesso annullato (articolo 38 del TUE).</span></div><div><span class="fs12lh1-5 cf1 ff1">Infine, si stabilisce che ai fini della determinazione dello stato legittimo dell’immobile o dell’unità immobiliare concorre il pagamento delle sanzioni previste:</span></div><div><ul><li><span class="fs12lh1-5 cf1 ff1">per gli interventi di ristrutturazione edilizia in assenza di permesso di costruire o in totale difformità (articolo 33 del TUE);</span></li><li><span class="fs12lh1-5 cf1 ff1">per gli interventi eseguiti in parziale difformità dal permesso di costruire (articolo 34 del TUE);</span></li><li><span class="fs12lh1-5 cf1 ff1">per gli interventi eseguiti in assenza o in difformità dalla segnalazione certificata di inizio attività e accertamento di conformità (articolo 37 del TUE);</span></li><li><span class="fs12lh1-5 cf1 ff1">per gli interventi eseguiti in base a permesso annullato (articolo 38 del TUE), e la dichiarazione di cui all’articolo 34-<em>bis </em>concernente le tolleranze costruttive.</span></li></ul></div><div><span class="fs12lh1-5 cf1 ff1">Restano ferme le disposizioni di cui all’articolo 9, comma 1-bis, secondo cui per gli immobili realizzati in un’epoca nella quale non era obbligatorio acquisire il titolo abilitativo edilizio, lo stato legittimo è quello desumibile dalle <strong><b>informazioni catastali di primo impianto</b></strong>, o da altri documenti probanti, quali le riprese fotografiche, gli estratti cartografici, i documenti d’archivio, o altro atto, pubblico o privato, di cui sia dimostrata la provenienza, e dal titolo abilitativo che ha disciplinato l’ultimo intervento edilizio che ha interessato l’intero immobile o unità immobiliare, integrati con gli eventuali titoli successivi che hanno abilitato interventi parziali.</span></div><div><span class="fs12lh1-5 cf1 ff1">Tali disposizioni si applicano anche nei casi in cui sussista un principio di prova del titolo abilitativo del quale, tuttavia, non sia disponibile copia.</span></div><div><span class="fs12lh1-5 cf1 ff1">Cambio di destinazione sempre consentito senza opere</span></div><div><span class="fs12lh1-5 cf1 ff1">Sono introdotte modifiche all’articolo 23-<em>ter</em> del D.P.R. 380/2001 in materia mutamento d’uso urbanisticamente rilevante volte ad agevolare i cambi di destinazione d’uso di singole unità immobiliari senza opere, specialmente all’interno delle aree urbane, prevedendo, in particolare, il principio dell’indifferenza funzionale tra destinazioni d’uso omogenee, così come individuate dalla legge statale o regionale.</span></div><div><span class="fs12lh1-5 cf1 ff1">In particolare, è sempre consentito il mutamento della destinazione d’uso della <strong><b>singola unità immobiliare</b></strong> e <strong><b>senza opere,</b></strong> nel rispetto delle normative di settore e ferma restando la possibilità per gli strumenti urbanistici comunali di fissare specifiche condizioni, nei seguenti casi:</span></div><div><ul><li><span class="fs12lh1-5 cf1 ff1">all’interno della stessa categoria funzionale(1-<em>bis</em>);</span></li><li><span class="fs12lh1-5 cf1 ff1">tra le categorie funzionali relative alla categoria: residenziale; turistico-ricettiva; produttiva e direzionale e commerciale (articolo 23-ter, comma 1, lettere a), a-bis), b) e c)) di una singola unità immobiliare in immobili ricompresi nelle zone A), B) e C) di cui all’articolo 2 del decreto del Ministro dei lavori pubblici 2 aprile 1968, n. 1444 (comma 1-<em>ter</em>).</span></li></ul></div><div><span class="fs12lh1-5 cf1 ff1">In relazione a tale ultima fattispecie, si precisa che per le singole unità immobiliare il mutamento di destinazione d’uso è sempre consentito qualora il mutamento finalizzato alla forma di utilizzo dell’unità immobiliare sia conforme a quella prevalente nelle altre unità immobiliari presenti nell’immobile.</span></div><div><span class="fs12lh1-5 cf1 ff1">Inoltre, si dispone che il mutamento non è assoggettato all’obbligo di reperimento di ulteriori aree per servizi di interesse generale, previsto dal decreto del Ministro dei lavori pubblici n. 1444 del 2 aprile 1968 e dalle disposizioni di legge regionale né al vincolo della dotazione minima obbligatoria dei parcheggi previsto dalla legge 17 agosto 1942, n. 1150.</span></div><div><span class="fs12lh1-5 cf1 ff1">Per le unità immobiliari poste al primo piano fuori terra il passaggio alla destinazione residenziale è ammessa nei soli casi espressamente previsti dal piano urbanistico e dal regolamento edilizio.</span></div><div><span class="fs12lh1-5 cf1 ff1">Ferme restando le leggi regionali più favorevoli, i cambi di destinazione d’uso sono soggetti alla <strong><b>Segnalazione Certificata di Inizio Attività</b></strong> (SCIA).</span></div><div><span class="fs12lh1-5 cf1 ff1">Trattandosi di disposizioni applicabili al mutamento delle destinazioni d’uso senza opere, restano ferme le disposizioni del TUE nel caso in cui siano previste opere edilizie.</span></div><div><span class="fs12lh1-5 cf1 ff1">Superamento della doppia conformità</span></div><div><span class="fs12lh1-5 cf1 ff1">Per sanare gli interventi realizzati in <strong><b>parziale difformità</b></strong> dai titoli depositati in Comune non sarà più necessario rispettare la doppia conformità urbanistica ed edilizia, cioè il rispetto sia alla norma del tempo della realizzazione che della presentazione della domanda.</span></div><div><blockquote></blockquote></div><div><span class="fs12lh1-5 cf1 ff1"><em><strong><b>ATTENZIONE</b></strong></em><br><em>Il superamento dell’istituto della doppia conformità è limitato alle ipotesi di parziali difformità degli interventi dal permesso di costruire o dalla segnalazione certificata di inizio attività di cui all’articolo 34 del D.P.R. 380/2001, nonché alle ipotesi di assenza o difformità dalla segnalazione certificata di inizio attività di cui all’articolo 37.</em></span></div><div><em><span class="fs12lh1-5 cf1 ff1">Resta quindi confermata la disciplina vigente dell’accertamento di conformità ai sensi della “doppia conformità” nei casi di assenza, totale difformità o variazioni essenziali rispetto al permesso di costruire o alla segnalazione certificata inizio attività.</span></em></div><div></div><div><span class="fs12lh1-5 cf1 ff1">Fino alla scadenza dei termini previsti per gli interventi eseguiti in parziale difformità dal permesso di costruire (di cui all’articolo 34, comma 1 – termine fissato dalla relativa ordinanza del dirigente o del responsabile dell’ufficio) e comunque fino all’irrogazione delle relative sanzioni amministrative, il responsabile dell’abuso, o l’attuale proprietario dell’immobile, può ottenere il permesso di costruire e presentare la segnalazione certificata di inizio attività in sanatoria se l’intervento risulti conforme:</span></div><div><ul><li><span class="fs12lh1-5 cf1 ff1">alla disciplina <strong><b>urbanistica</b></strong> vigente al <strong><b>momento della presentazione della domanda</b></strong>, disciplina che meglio può rappresentare gli interessi attuali del territorio;<br>e</span></li><li><span class="fs12lh1-5 cf1 ff1">ai requisiti prescritti dalla disciplina <strong><b>edilizia</b></strong> vigente al momento della <strong><b>realizzazione dell’intervento</b></strong>.</span></li></ul></div><div><span class="fs12lh1-5 cf1 ff1">L’epoca di realizzazione dell’intervento è provata mediante la documentazione di cui all’articolo 9-bis, comma 1-bis, secondo e terzo periodo, introdotti dal presente decreto-legge.</span></div><div><span class="fs12lh1-5 cf1 ff1">Nei casi in cui sia impossibile accertare l’epoca di realizzazione dell’intervento mediante la documentazione, il tecnico incaricato attesta la data di realizzazione con propria dichiarazione e sotto la sua responsabilità.</span></div><div><span class="fs12lh1-5 cf1 ff1">Il permesso di costruire è rilasciato dallo Sportello unico edilizia. In sede di esame delle richieste di permesso, lo Sportello unico edilizia può condizionare il rilascio del provvedimento alla realizzazione, da parte del richiedente, degli <strong><b>interventi edilizi necessari ad assicurare l’osservanza della normativa tecnica di settore</b></strong> relativa ai requisiti di <strong><b>sicurezza</b></strong>, <strong><b>igiene</b></strong>, <strong><b>salubrità</b></strong>, <strong><b>efficienza energetica</b></strong> degli edifici e degli impianti negli stessi installati, superamento delle barriere architettoniche e la rimozione delle opere che non possono essere sanate.</span></div><div><span class="fs12lh1-5 cf1 ff1">La richiesta del permesso di costruire o la segnalazione certificata di inizio attività in sanatoria sono accompagnate dalla dichiarazione del professionista abilitato che attesti le necessarie conformità (per la conformità edilizia, la dichiarazione è resa con riferimento alle norme tecniche vigenti al momento della realizzazione dell’intervento).</span></div><div><span class="fs12lh1-5 cf1 ff1">Silenzio-assenso sulle richieste di sanatoria</span></div><div><span class="fs12lh1-5 cf1 ff1">Con il nuovo decreto si supera il silenzio rigetto e si introduce il silenzio assenso. In particolare, sulla richiesta di permesso in sanatoria, il dirigente o il responsabile del competente ufficio comunale si pronuncia con provvedimento motivato entro <strong><b>45 giorni</b></strong>, decorsi i quali la richiesta si intende accolta. Per le segnalazioni di inizio attività, si applica il termine di <strong><b>30 giorni</b></strong>.</span></div><div><span class="fs12lh1-5 cf1 ff1">Per gli immobili con vincoli paesaggistici sopravvenuti sarà possibile chiedere una valutazione previa presentazione dell’autorizzazione paesaggistica. L’autorità competente si pronuncia sulla domanda entro il termine perentorio di <strong><b>180 giorni</b></strong>, previo parere vincolante della soprintendenza da rendersi entro il termine perentorio di <strong><b>90 giorni</b></strong>. Se i pareri non sono resi entro i termini di cui al secondo periodo, il dirigente o responsabile dell’ufficio provvede autonomamente.</span></div><div><span class="fs12lh1-5 cf1 ff1">In ogni caso è previsto il pagamento di una sanzione in relazione all’entità dell’abuso da sanare.</span></div><div><span class="fs12lh1-5 cf1 ff1">Tolleranze costruttive riparametrate</span></div><div><span class="fs12lh1-5 cf1 ff1">In relazione agli interventi realizzati <strong><b>entro il 24 maggio 2024</b></strong>, le <strong><b>tolleranze costruttive</b></strong> sono riparametrate in misura inversamente proporzionale alla superficie utile. Pertanto, minore è la superficie utile maggiore è il limite consentito percentualmente.</span></div><div><span class="fs12lh1-5 cf1 ff1">La misura consente di tenere conto, nell’ambito della definizione della tolleranza, di discostamenti minimi rispetto alle caratteristiche costruttive previste nei titoli abilitativi che, se considerate su superficie di modesta entità, possono impattare, seppur minime, per più del 2 per cento del totale.</span></div><div><span class="fs12lh1-5 cf1 ff1">Più nello specifico, il mancato rispetto dell’altezza, dei distacchi, della cubatura, della superficie coperta e di ogni altro parametro delle singole unità immobiliari non costituiscono violazione edilizia se contenuto entro i seguenti limiti:</span></div><div><ul><li><span class="fs12lh1-5 cf1 ff1">del <strong><b>2 %</b></strong> delle misure previste dal titolo abilitativo per le unità immobiliari con superficie utile superiore ai <strong><b>500 metri quadrati</b></strong>;</span></li><li><span class="fs12lh1-5 cf1 ff1">del <strong><b>3 %</b></strong> delle misure previste nel titolo abilitativo per le unità immobiliari con superficie utile compresa <strong><b>tra i 300 e i 500 metri quadrati</b></strong>;</span></li><li><span class="fs12lh1-5 cf1 ff1">del <strong><b>4 %</b></strong> delle misure previste nel titolo abilitativo per le unità immobiliari con superficie utile compresa <strong><b>tra i 100 e i 300 metri quadrati</b></strong>;</span></li><li><span class="fs12lh1-5 cf1 ff1">del <strong><b>5 %</b></strong> delle misure previste nel titolo abilitativo per le unità immobiliari con superficie utile <strong><b>inferiore ai 100 metri quadrati</b></strong>.</span></li></ul></div><div><span class="fs12lh1-5 cf1 ff1">Ai fini del computo della superficie utile, si dovrà tenere conto della <strong><b>sola superficie assentita con il titolo edilizio che ha abilitato la realizzazione dell’intervento</b></strong>, al netto di eventuali frazionamenti dell’immobile o dell’unità immobiliare eseguiti nel corso del tempo.</span></div><div><span class="fs12lh1-5 cf1 ff1">Tale previsione è finalizzata ad evitare possibili condotte di frazionamento meramente strumentali ad ottenere l’applicazione di un regime più favorevole.</span></div><div><span class="fs12lh1-5 cf1 ff1">Da sottolineare che non sono soggetti ad <strong><b>autorizzazione paesaggistica</b></strong> gli interventi realizzati entro il 24 maggio 2024 che rientrino nei limiti delle tolleranze costruttive riparametrati ai sensi del D.L. “decreto salva-casa”.</span></div><div><span class="fs12lh1-5 cf1 ff1">Tolleranze esecutive su irregolarità e modifiche di minima entità</span></div><div><span class="fs12lh1-5 cf1 ff1">Ulteriori disposizioni riguardano le <strong><b>tolleranze esecutive</b></strong> (o di cantiere), ovvero le irregolarità geometriche, le modifiche alle finiture degli edifici di minima entità, la diversa collocazione di impianti e opere interne eseguite durante i lavori per l’attuazione di titoli abilitativi edilizi.</span></div><div><span class="fs12lh1-5 cf1 ff1">Si prevede che gli interventi realizzati <strong><b>entro il 24 maggio 2024</b></strong> costituiscono tolleranze esecutive nei seguenti casi:</span></div><div><ul><li><span class="fs12lh1-5 cf1 ff1">minore dimensionamento dell’edificio;</span></li><li><span class="fs12lh1-5 cf1 ff1">mancata realizzazione di elementi architettonici non strutturali;</span></li><li><span class="fs12lh1-5 cf1 ff1">irregolarità geometriche e modifiche alle finiture degli edifici di minima entità, irregolarità esecutive di <strong><b>muri esterni ed interni</b></strong> e difforme ubicazione delle <strong><b>aperture interne</b></strong>;</span></li><li><span class="fs12lh1-5 cf1 ff1">difforme esecuzione di opere rientranti nella nozione di manutenzione ordinaria;</span></li><li><span class="fs12lh1-5 cf1 ff1">errori progettuali corretti in cantiere e errori materiali di rappresentazione progettuale delle opere.</span></li></ul></div><div><span class="fs12lh1-5 cf1 ff1">Per le unità immobiliari ubicate nelle zone sismiche, ad eccezione di quelle a bassa sismicità, il tecnico dovrà attestare che gli interventi rispettino le prescrizioni di cui alla sezione I del Capo IV della Parte II del D.P.R. 380/2001 in materia di normativa per le costruzioni in zone sismiche.</span></div><div><span class="fs12lh1-5 cf1 ff1">La nuova norma sulle tolleranze esecutive intende regolarizzare in automatico i piccoli scostamenti legati alla realizzazione materiale delle opere, se presenti sin dalla realizzazione dell’immobile.</span></div><div><span class="fs12lh1-5 cf1 ff1">Vengono sanati ad esempio il minore dimensionamento degli elementi presenti negli immobili e gli errori di esecuzione (pareti in una posizione differente o con una forma diversa rispetto a quanto autorizzato, finestre collocate in una posizione diversa o leggermente più grandi, le nicchie o per le porte interne, anch’esse spostate rispetto ai documenti ufficiali.</span></div><div><span class="fs12lh1-5 cf1 ff1">Interventi eseguiti in assenza di permesso di costruire, in totale difformità o con variazioni essenziali</span></div><div><span class="fs12lh1-5 cf1 ff1">Sono apportate modifiche all’articolo 31 del testo unico edilizio in tema di interventi eseguiti in assenza di permesso di costruire, in totale difformità o con variazioni essenziali.</span></div><div><span class="fs12lh1-5 cf1 ff1">Si prevede che:</span></div><div><ul><li><span class="fs12lh1-5 cf1 ff1">l’opera acquisita possa essere demolita, previo parere delle amministrazioni competenti, purché la demolizione non contrasti, oltre che con rilevanti interessi urbanistici, ambientali o di rispetto dell’assetto idrogeologico, anche con rilevanti <strong><b>interessi culturali e paesaggistici</b></strong>;</span></li><li><span class="fs12lh1-5 cf1 ff1">nel caso in cui l’opera non contrasti con rilevanti interessi culturali, paesaggistici, urbanistici, ambientali o di rispetto dell’assetto idrogeologico, il Comune (previo parere delle amministrazioni competenti) possa provvedere all’alienazione del bene e dell’area di sedime (che ai sensi del comma 3 sono acquisiti di diritto gratuitamente al patrimonio del comune), condizionando sospensivamente il contratto alla effettiva rimozione da parte dell’acquirente delle opere abusive.</span></li></ul></div><div><span class="fs12lh1-5 cf1 ff1">Su punto, occorre precisare che:</span></div><div><ul><li><span class="fs12lh1-5 cf1 ff1">l’alienazione debba avvenire nel rispetto delle Disposizioni in materia di alienazione degli immobili di proprietà pubblica di cui all’articolo 12, comma 2, della legge 15 maggio 1997, n. 127;</span></li><li><span class="fs12lh1-5 cf1 ff1">alla procedura di alienazione non può partecipare il responsabile dell’abuso.</span></li></ul></div><div><span class="fs12lh1-5 cf1 ff1">Il valore venale dell’immobile è determinato dall’agenzia del territorio tenendo conto dei costi per la rimozione delle opere abusive.</span></div><div><span class="fs12lh1-5 cf1 ff1">Strutture amovibili realizzate durante l’emergenza sanitaria da Covid-19</span></div><div><span class="fs12lh1-5 cf1 ff1">Le strutture amovibili realizzate durante l’emergenza sanitaria da Covid-19, con la finalità di consentire il mantenimento di quelle strutture, che si ritengono di utilità sociale, realizzate per finalità sanitarie, assistenziali ed educative possano rimanere installate, in presenza di comprovate e obiettive esigenze idonee a dimostrarne la perdurante necessità.</span></div><div><span class="fs12lh1-5 cf1 ff1">Nel dettaglio, l’articolo riconosce la possibilità di mantenere installate tali strutture facendo salve le prescrizioni degli strumenti urbanistici comunali, e comunque nel rispetto delle altre normative di settore aventi incidenza sulla disciplina dell’attività edilizia e, in particolare, delle norme antisismiche, di sicurezza, antincendio, igienico-sanitarie, di quelle relative all’efficienza energetica, di tutela dal rischio idrogeologico, nonché delle disposizioni contenute nel codice dei beni culturali e del paesaggio.</span></div><div><span class="fs12lh1-5 cf1 ff1">La disposizione chiarisce che resta ferma la facoltà per il Comune territorialmente competente di richiederne in qualsiasi momento la rimozione, con provvedimento motivato, nel caso in cui sia rilevata la non conformità dell’opera con le prescrizioni e i predetti requisiti.</span></div><div><span class="fs12lh1-5 cf1 ff1">A tal fine si prevede che gli interessati dovranno presentare una comunicazione di inizio lavori asseverata nella quale dovranno essere indicate le comprovate e obiettive esigenze idonee a dimostrarne la perdurante necessità delle strutture amovibili oltre all’indicazione dell’epoca di realizzazione della struttura.</span></div><div><span class="fs12lh1-5 cf1 ff1">Infine, si prevede che per provare l’epoca di realizzazione dell’intervento il tecnico dovrà allegare la documentazione di cui all’articolo 9-bis, comma 1-bis, e che nei casi in cui sia impossibile accertare l’epoca di realizzazione della struttura con tale documentazione il tecnico incaricato deve attestare la data di realizzazione con propria dichiarazione e sotto la sua responsabilità.</span></div><div><span class="fs12lh1-5 cf1 ff1">Cosa potrà o non potrà essere sanato con il condono edilizio 2024 (“decreto salva-casa”)</span></div><div><span class="fs12lh1-5 cf1 ff1"><strong><b>Non sono sanabili</b></strong> gli interventi eseguiti in totale difformità dal permesso di costruire o di SCIA straordinaria, ovvero in assenza di tale titolo, ovvero di variazioni essenziali al progetto approvato.</span></div><div><span class="fs12lh1-5 cf1 ff1">In relazione a questi abusi, restano immutate le misure di prevenzione e di sanzione previste dal D.P.R. 380/2001.</span></div><div><span class="fs12lh1-5 cf1 ff1">Sono pertanto escluse dal condono 2024 le <strong><b>variazioni essenziali</b></strong>, ad esempio quelle che hanno impatti sulla <strong><b>stabilità dell’immobile</b></strong> realizzati in assenza di permessi. Mentre potranno essere regolarizzati gli interventi realizzati sulla base di autorizzazioni depositate in Comune e dotati di certificato di agibilità.</span></div><div><span class="fs12lh1-5 cf1 ff1">Per fare alcuni esempi, il piano “decreto salva-casa” condonerà il tramezzo spostato, mentre non potranno essere sanati i pilastri e le solette inseriti o il balcone allargato senza un permesso edilizio. Via libera anche alla facciata esterna della casa “allargata” di qualche centimetro nel passaggio dal progetto alla costruzione.</span></div><div><span class="fs12lh1-5 cf1 ff1">Cosa cambia per le vetrate panoramiche amovibili (Vepa)?</span></div><div><span class="fs12lh1-5 cf1 ff1">Dal 2022 le Vepa sono interventi di edilizia libera nei casi di chiusura di balconi e di logge. Nel “decreto salva casa” viene specificato che non servono permessi e autorizzazioni per l’installazione di queste vetrate anche sui porticati. Bisogna, però, considerare che questi elementi non possono generare una variazione di volumi e superfici e devono essere realizzati in modo da garantire un costante flusso di arieggiamento.</span></div><div><span class="fs12lh1-5 cf1 ff1">Può essere richiesta la sanatoria per camere e soppalchi?</span></div><div><span class="fs12lh1-5 cf1 ff1">Le stanze leggermente più grandi sono legittime se rientreranno nelle nuove percentuali di tolleranza. Per le stanze e i soppalchi non dichiarati, va verificato il rispetto delle regole sulla conformità e la compatibilità della nuova cubatura con le regole urbanistiche dei Comuni.</span></div><div><span class="fs12lh1-5 cf1 ff1">Può essere sanata la chiusura delle verande?</span></div><div><span class="fs12lh1-5 cf1 ff1">La chiusura di verande può essere regolarizzata solo se la realizzazione risulta compatibile con le regole urbanistiche del Comune. L’intervento rientra infatti nel nuovo accertamento di conformità e richiede comunque il pagamento della sanzione.</span></div><div><span class="fs12lh1-5 cf1 ff1">Cosa si intende per “irregolarità esecutive di muri esterni ed interni”?</span></div><div><span class="fs12lh1-5 cf1 ff1">Le “irregolarità esecutive di muri esterni ed interni” sono tolleranze costruttive come le finestre con posizione o dimensione diversa rispetto a quanto autorizzato, un balcone leggermente più grande.</span></div><div><span class="fs12lh1-5 cf1 ff1">Sono sanabili anche le aperture interne?</span></div><div><span class="fs12lh1-5 cf1 ff1">Tra le tolleranze esecutive rientrano anche le aperture interne, ovvero le porte collocate in una posizione diversa rispetto a quanto dichiarato.</span></div><div><span class="fs12lh1-5 cf1 ff1">Decreto salva-casa: pace edilizia o condono edilizio?</span></div><div><span class="fs12lh1-5 cf1 ff1">Nelle intenzioni del Ministero delle Infrastrutture, il “decreto salva-casa” sancisce una nuova “<strong><b>pace edilizia</b></strong>” e un’<strong><b>ampia sanatoria per piccoli abusi</b></strong> nel settore edilizio allo scopo di <strong><b>tutelare i piccoli proprietari immobiliari</b></strong> (che in molti casi <strong><b>attendono da decenni la regolarizzazione delle loro posizioni</b></strong> poiché, a causa delle irregolarità, non riescono, spesso, a ristrutturare o vendere la propria casa), <strong><b>deflazionare il lavoro degli uffici tecnici comunali</b><b> </b></strong>(spesso sommersi dalle richieste di sanatorie), <strong><b>semplificare le procedure amministrative</b></strong> (per garantire ai cittadini risposte certe in tempi certi) e <strong><b>mettere in regola la propria abitazione</b></strong> (garantendo sicurezza e conformità agli standard attuali del settore edilizio).</span></div><div><span class="fs12lh1-5 cf1 ff1">Si scrive Piano “decreto salva-casa”, ma si legge condono edilizio / sanatoria?</span></div><div><span class="fs12lh1-5 cf1 ff1">È presto per dirlo. Lasciamo al lettore il giudizio, ricordando solo che:</span></div><div><ul><li><span class="fs12lh1-5 cf1 ff1">il condono edilizio è un provvedimento giuridico adottato dal governo o dall’autorità locale che consente di sanare irregolarità edilizie esistenti entro una certa data;</span></li><li><span class="fs12lh1-5 cf1 ff1">la <b>sanatoria edilizia</b> è invece un processo continuo che permette la regolarizzazione degli abusi edilizi attraverso il pagamento di una sanzione.</span></li></ul></div><div><br></div><div><span class="fs12lh1-5 cf1 ff1"><b>Cos’è un condono edilizio</b></span></div><div><span class="fs12lh1-5 cf1 ff1">L’abuso edilizio è una violazione delle norme urbanistiche ed edilizie. Si verifica quando vengono compiute opere edili senza alcun tipo di autorizzazione amministrativa richiesta dalla legge.</span></div><div><span class="fs12lh1-5 cf1 ff1">L’abuso edilizio è un vero reato e proprio reato che si commette quando si costruisce su un suolo non edificabile, oppure quando si costruisce o si ristruttura senza le autorizzazioni dovute previste dal testo unico sull’edilizia o dalle leggi vigenti all’epoca della realizzazione.</span></div><div><span class="fs12lh1-5 cf1 ff1">Quando si commette un abuso edilizio, proprietario, costruttore e e committente sono responsabili del pagamento delle sanzioni in solido per quanto riguarda le spese della demolizione, qualora vi sia una disposizione ad hoc prevista.</span></div><div><span class="fs12lh1-5 cf1 ff1">Inoltre, se il procedimento relativo alla sanatoria non va a buon fine e non si può agire secondo altre modalità, l’abuso rimane comunque passibile di conseguenze come la demolizione.</span></div><div><span class="fs12lh1-5 cf1 ff1">A questo punto entra il gioco il condono edilizio.</span></div><div><span class="fs12lh1-5 cf1 ff1">Il <strong><b>condono edilizio è una misura straordinaria</b></strong>, che consente la regolarizzazione di opere realizzate, senza permesso, in violazione delle norme edilizie e urbanistiche, specificando di volta in volta l’oggetto specifico del condono stesso e l’oblazione dovuta.</span></div><div><span class="fs12lh1-5 cf1 ff1">Il condono differisce pertanto dalla <b><b><strong>sanatoria edilizia</strong></b></b>, che è invece un procedimento ordinario previsto dal <b>Testo Unico dell’edilizia</b> (<strong><b>D.P.R. 380/2001</b></strong>) e può essere concessa, dietro pagamento di una sanzione, in presenza del requisito della doppia conformità: l’opera realizzata senza permesso deve risultare conforme alle norme vigenti nel momento in cui è stata realizzata e a quelle vigenti nel momento in cui si richiede la sanatoria.</span></div><div><span class="fs12lh1-5 cf1 ff1">In Italia ci sono stati tre condoni edilizi: la Legge <strong><b>87/1985</b></strong>, la Legge <strong><b>724/1994</b></strong> e la Legge <strong><b>326/2003.</b></strong></span></div><div><span class="fs12lh1-5 cf1 ff1">Ogni Governo si trova davanti alla scelta di adottare o meno provvedimenti legislativi che consentano ai cittadini di ottenere l’annullamento di una certa pena o di una sanzione che è derivata dalla commissione di un atto illecito, l’<strong><b>abuso edilizio</b></strong>.</span></div><div><span class="fs12lh1-5 cf1 ff1">Si parla spesso di “<strong><b>regolarizzazione</b></strong>” o “<strong><b>pace edilizia</b></strong>” per intendere la volontà del legislatore di permettere di sanare solo i piccoli abusi, quelli frutto di errori, norme troppo complesse e di modifiche normative stratificate nel tempo e di sistemare una miriade di sospesi che generano altrettanto contenziosi.</span></div><div><span class="fs12lh1-5 cf1 ff1">Contano anche <strong><b>considerazioni di carattere economico e finanziario</b></strong>: con i condoni lo Stato può “far cassa” e la regolarizzazione generalizzata di piccole o grandi difformità può generare circoli virtuosi nel mercato immobiliare e nel settore delle costruzioni in generale.</span></div><div><span class="fs12lh1-5 cf1 ff1">In questo articolo, trovi tutti gli <strong><b>ultimi aggiornamenti in materia di condono edilizio</b></strong>, lo stato dell’arte, le ipotesi al vaglio del Governo, le proposte di associazioni di categoria e sindacati, la raccolta delle sentenze più importanti in materia di condono.</span></div></article></main></div></div>]]></description>
			<pubDate>Tue, 28 May 2024 21:06:00 GMT</pubDate>
			<enclosure url="https://www.studiotecnicoiossa.it/blog/files/SALVA-HASA_thumb.jpg" length="44964" type="image/jpg" />
			<enclosure url="https://www.studiotecnicoiossa.it/images/SALVA-HASA.jpg" length="44964" type="image/jpg" />
			<link>https://www.studiotecnicoiossa.it/blog/?decreto-salva-casa</link>
			<guid isPermaLink="false">https://www.studiotecnicoiossa.it/blog/rss/000000008</guid>
		</item>
		<item>
			<title><![CDATA[3. La formazione tacita del Condono presupposte tutti i requisiti ed elementi sostanziali per consentire la verifica della P.A.]]></title>
			<author><![CDATA[]]></author>
			<category domain="https://www.studiotecnicoiossa.it/blog/index.php?category=condono_edilizio"><![CDATA[condono edilizio]]></category>
			<category>imblog</category>
			<description><![CDATA[<div id="imBlogPost_000000007"><div><span class="fs12lh1-5 cf1 ff1">Il silenzio assenso è una possibile (e limitata) modalità di formazione del titolo abilitativo edilizio, estesa anche alle domande di condono edilizio già presentate in passato fin dalla L. 47/85.</span></div><div><span class="fs12lh1-5 cf1 ff1">Il vero interrogativo che riecheggia ogni tanto è se il procedimento di condono edilizio abbia raggiunto il traguardo anche col silenzio serbato dal Comune; l’altra domanda che riaffiora ogni tanto da un orientamento minoritario è se il silenzio-assenso abbia un potere così elastico da assorbire tutte le magagne o irregolarità presenti nella domanda.</span></div><div><span class="fs12lh1-5 cf1 ff1">Per esempio, poche settimane fa ho ricordato in un post che la mancata risposta alla richiesta di integrazioni delle domande di condono edilizio comporta l’improcedibilità, e pertanto gli stessi effetti di rifiuto dell’istanza: in quel caso l’opera abusiva da “astrattamente” condonabile torna ad essere “pienamente” abusiva e soggetta ai provvedimenti repressivi.</span></div><div><span class="fs12lh1-5 cf1 ff1">Un approfondimento integrale sul tema del silenzio-assenso nel condono edilizio è pubblicato in questo post.</span></div><div><span class="fs12lh1-5 cf1 ff1">Oggi invece torno a parlare di quelle <strong><b>domande di condono che si presentano incomplete, anche dopo la risposta ad una richiesta di integrazione documentale</b></strong> notificata dal Comune al richiedente. In altre parole, anche il mancato riscontro della richiesta di integrazione documentale dell’istanza di condono edilizio giustifica il rigetto della medesima istanza da parte del Comune. Riprendo un principio prevalente (Cons. di Stato n. 16/2022) che afferma:</span></div><div><em class="fs12lh1-5 cf1 ff1">La formazione del silenzio-assenso sulla domanda di sanatoria degli abusi edilizi presuppone, infatti, che siano stati integralmente assolti dal richiedente gli oneri di documentazione consistenti nella prova circa la sussistenza dei requisiti sostanziali, relativi al tempo di ultimazione dei lavori, all’ubicazione, alla consistenza delle opere abusive e ad ogni altro elemento rilevante affinché possano essere utilmente esercitati i poteri di verifica dell’Amministrazione anche ai fini della corretta e definitiva determinazione dell’entità dell’oblazione.</em></div><div><em class="fs12lh1-5 cf1 ff1"><br></em></div><div><div><span class="fs12lh1-5 cf1 ff1">Sempre dalla stessa giurisprudenza emerge come il silenzio assenso non si forma sulle istanze di condono documentalmente incomplete (Cons. Stato n. 16/2022, n. 1474/2021, 1287/2021, TAR Palermo n. 2023/2627).</span></div><div><span class="fs12lh1-5 cf1 ff1">Si evince a chiari lettere che <strong><b>l’istanza di condono debba essere corredata da qualsiasi documento obbligatorio</b></strong>, ma anche dei necessari altri documenti per fornire una adeguata rappresentazione dell’abuso.</span></div><div><span class="fs12lh1-5 cf1 ff1">Da tale norma <strong><b>emerge come il silenzio assenso si possa formare soltanto in presenza di tutti i presupposti da essa indicati e, in particolare, in presenza di una documentazione completa</b></strong> degli elementi richiesti dall’articolo riportato (Cons. di Stato n. 3676/2023).</span></div><div><span class="fs12lh1-5 cf1 ff1">Personalmente ho già sconsigliato di confidare nell’istituto del silenzio-assenso che, per carità, è scritto nero su bianco nei vari provvedimenti normativi: ma cento volte meglio avere il titolo rilasciato dal Comune, nel presupposto che ci siano tutte le carte e condizioni di correttezza. Anche perchè in caso di ulteriori discordanze o irregolarità, si potrebbero profilare rischi di annullamento della concessione edilizia in sanatoria rilasciata e ottenuta come “dolosamente infedele“.</span></div></div></div>]]></description>
			<pubDate>Thu, 07 Dec 2023 19:37:00 GMT</pubDate>
			<enclosure url="https://www.studiotecnicoiossa.it/blog/files/condono-edilizio-450x342_thumb.jpg" length="78937" type="image/jpg" />
			<link>https://www.studiotecnicoiossa.it/blog/?3--la-formazione-tacita-del-condono-presupposte-tutti-i-requisiti-ed-elementi-sostanziali-per-consentire-la-verifica-della-p-a-</link>
			<guid isPermaLink="false">https://www.studiotecnicoiossa.it/blog/rss/000000007</guid>
		</item>
		<item>
			<title><![CDATA[2. L’importanza dell’asseverazioni di conformità urbanistica edilizia riguarda anche le pratiche CILA]]></title>
			<author><![CDATA[]]></author>
			<category domain="https://www.studiotecnicoiossa.it/blog/index.php?category=edilizia"><![CDATA[edilizia]]></category>
			<category>imblog</category>
			<description><![CDATA[<div id="imBlogPost_000000005"><div><span class="fs12lh1-5 ff1">Partendo dall’articolo 9-bis comma 1-bis del <span class="cf1">D.P.R. 380/01</span>, introdotto col <span class="cf1">decreto legge 76/2020</span>, esaminiamo l’obbligo di verifiche preventive sulla regolarità urbanistica edilizia degli immobili. In particolare esso trova applicazione in diverse situazioni, tra cui interventi rientranti in <span class="cf1">Comunicazione Inizio Lavori Asseverata.</span></span></div><div><span class="fs12lh1-5 ff1"><span class="cf1">L’obbligo di verificare lo Stato Legittimo anche nelle CILA</span> proviene dall’articolo 34-bis T.U.E. sulle tolleranze degli immobili: esso richiama espressamente l’attestazione dello Stato legittimo dell’articolo 9-bis:</span></div><div><em class="fs12lh1-5 ff1">3. Le tolleranze esecutive di cui ai commi 1 e 2 realizzate nel corso di precedenti interventi edilizi, non costituendo violazioni edilizie,<strong><b> </b><b>sono dichiarate dal tecnico abilitato, ai fini dell’attestazione dello stato legittimo degli immobili, nella modulistica relativa a nuove istanze, comunicazioni e segnalazioni edilizie</b></strong> ovvero con apposita dichiarazione asseverata allegata agli atti aventi per oggetto trasferimento o costituzione, ovvero scioglimento della comunione, di diritti reali.</em></div><div><span class="fs12lh1-5 ff1">Questa asseverazione sulle tolleranze edilizie, è necessaria per l’attestazione dello Stato legittimo in varie pratiche edilizie, comprese le compravendite.</span></div><div><span class="fs12lh1-5 ff1">In tanto bisogna stare in guardia sui rischi e le responsabilità a carico di noi Tecnici quando si assevera il<strong><b> </b><b>rispetto delle tolleranze relativo allo Stato Legittimo, e pertanto la conformità</b></strong>: per fare ciò è necessario produrre la necessaria documentazione accurata per dimostrare la regolarità di tutte le trasformazioni avvenute nel corso del tempo.</span></div><div><span class="fs12lh1-5 ff1">Nelle comunicazioni edilizie soggette ad<strong><b> </b><b>obbligo di attestazione di conformità sulle tolleranze</b></strong> e Stato Legittimo, vi rientrano le:</span></div><div><ul><li><span class="fs12lh1-5 ff1"><span class="cf2">CILA ordinarie</span><span class="cf2"> </span><span class="cf2">(art. 6-bis c.2 TUE)</span></span></li><li><span class="fs12lh1-5 ff1"><span class="cf2">CILA tardiva</span><span class="cf2"> </span><span class="cf2">(art. 6-bis c. 5 TUE)</span></span></li></ul></div><div><span class="fs12lh1-5 ff1"><strong><b>Entrambe devono contenere l’asseverazione del rispetto dello Stato legittimo</b></strong>, anche se in alcune Regioni tale obbligo non risulta nelle legislazioni regionali: nei casi in cui si stato rimosso o limitato per scelta, temo che tale definizione non rientri tra le loro competenze, in quanto si potrebbe incidere anche sul regime penale dei reati edilizi, di esclusiva competenza nazionale.</span></div><div><span class="fs12lh1-5 ff1">Poi ci sarebbe la speciale versione di <span class="cf1">CILAS (CILA superbonus) su cui l’articolo 119 comma 13-ter DL 34/2020 richiede soltanto di attestare una minima parte delle informazioni sullo Stato Legittimo</span>, riservando tuttavia i pieni poteri di controllo della P.A. sulla legittimità dell’immobile (un ossimoro).</span></div><div><span class="fs12lh1-5 ff1">Inoltre, proprio la scelta di usare una speciale CILA senza stato legittimo per le opere rientrati nel Superbonus, implica che di default la normale CILA ne presupponga l’attestazione.</span></div><div><span class="fs12lh1-5 ff1">Concludo <strong><b>consigliando ai colleghi Tecnici e ai proprietari di immobili di effettuare le verifiche preventive sullo Stato legittimo</b></strong>, e di evitare interventi immobiliari basati su pratiche edilizie di cui non si è consapevoli della “provenienza urbanistica”, considerato che la normativa richiede un approccio completo alla verifica dell’intero edificio.</span></div></div>]]></description>
			<pubDate>Thu, 07 Dec 2023 17:48:00 GMT</pubDate>
			<enclosure url="https://www.studiotecnicoiossa.it/blog/files/download_thumb.jpg" length="9154" type="image/jpg" />
			<link>https://www.studiotecnicoiossa.it/blog/?l-importanza-dell-asseverazioni-di-conformita-urbanistica-edilizia-riguarda-anche-le-pratiche-cila</link>
			<guid isPermaLink="false">https://www.studiotecnicoiossa.it/blog/rss/000000005</guid>
		</item>
		<item>
			<title><![CDATA[1. Aggiornamenti catastali post interventi legati al superbonus]]></title>
			<author><![CDATA[Geom. Angelo Iossa]]></author>
			<category domain="https://www.studiotecnicoiossa.it/blog/index.php?category=superbonus"><![CDATA[superbonus]]></category>
			<category>imblog</category>
			<description><![CDATA[<div id="imBlogPost_000000004"><div><span class="fs12lh1-5 cf1 ff1">Affrontiamo il tema delle verifiche catastali successive agli interventi che hanno beneficiato del superbonus, in particolare, per gli immobili che hanno subìto modifiche, anche se considerati interventi non particolarmente invasivi.</span></div><div><img class="image-0" src="https://www.studiotecnicoiossa.it/images/110-854x427.png"  title="" alt=""/></div><div><span class="fs12lh1-5 cf1 ff1">Per quel che se ne crede, interventi di <strong><b>questo tipo ha probabilmente inciso sul valore catastale e sulla relativa rendita, anche senza cambiare necessariamente le caratteristiche distributive e di prospetto dell’unità.</b></strong> Però, se siamo onesti intellettualmente, possiamo dire che interventi rilevanti come quelli del Superbonus, e anche dei bonus minori, hanno apportato notevole miglioramento qualitativo e valore, a fronte di costi sostanziosi (grazie anche alla cessione del credito e sconto in fattura).</span></div><div><span class="fs12lh1-5 cf1 ff1">La riprova arriva dall’aumento di valore che si spunterà al momento della loro successiva vendita, ed è per questo che il legislatore ha già previsto di assoggettare a specifica tassazione le plusvalenze conseguenti al Superbonus 110.</span></div><div><span class="fs12lh1-5 cf1 ff1">Sarà opportuno riflettere sull’aggiornamento catastale postumo a interventi ritenuti non invasivi, come l’installazione di un cappotto termico o sostituzione/installazione di impianti. Si potrebbero fare simulazioni col programma DOCFA, ma ciò sarà difficile da far digerire ai proprietari: in buona parte schizzeranno verso l’alto le rendite catastali, perchè relative a situazioni non aggiornate o risalenti nel tempo.</span></div><div><span class="fs12lh1-5 cf1 ff1"><ins data-ad-client="ca-pub-3110980607021896" data-ad-slot="3597515642" data-ad-format="auto" data-full-width-responsive="true" data-adsbygoogle-status="done"></ins></span></div><div><span class="fs12lh1-5 cf1 ff1">Intanto consiglio di valutare attentamente l’incidenza dell’installazione pannelli solari e fotovoltaici sulla rendita catastale e sul valore dell’immobile, anche in relazione al famoso 15% incidente su valore e rendita catastale.</span></div><div><span class="fs12lh1-5 cf1 ff1">Si anticipa la possibile approvazione dell’articolo 21 della Manovra Economica 2024, che concederebbe all’Agenzia delle Entrate il potere di effettuare verifiche basate su liste selettive elaborate con sistemi tecnologici e banche dati interoperabili. Occhio: l’Agenzia delle Entrate avrà accesso a informazioni dettagliate sugli interventi, grazie anche alla cessione di credito, e avrà la possibilità di inviare comunicazioni di compliance da parte dell’Agenzia delle Entrate e la necessità di coordinare la presentazione del Docfa con la fine dei lavori per evitare sanzioni.</span></div><div><span class="fs12lh1-5 cf1 ff1">Tra l’altro l’aggiornamento del profilo catastale degli immobili sarà attenzionato anche per verificare ipotesi di abuso del diritto, cioè quelle modifiche artefatte e preordinate ad aumentare massimali e possibilità di accesso ai benefici fiscali; essi sono stati richiamati anche dalla Circolare 23/2022 che avvertiva sul fatto che l’amministrazione finanziaria può effettuare controlli in merito a interventi apparentemente non invasivi.</span></div></div>]]></description>
			<pubDate>Thu, 07 Dec 2023 17:14:00 GMT</pubDate>
			<enclosure url="https://www.studiotecnicoiossa.it/blog/files/110-854x427_thumb.png" length="308202" type="image/png" />
			<link>https://www.studiotecnicoiossa.it/blog/?aggiornamenti-catastali-post-interventi-legati-al-superbonus</link>
			<guid isPermaLink="false">https://www.studiotecnicoiossa.it/blog/rss/000000004</guid>
		</item>
	</channel>
</rss>